根据《中华人民共和国拍卖法》《城市道路管理条例》《市政公共资源有偿使用收入管理办法》等有关规定,2022年7月至2024年6月期间苍岭镇集镇饱满街市场摊位的经营权依法面向社会实行公开拍卖。我镇委托苍岭镇公共资源交易中心定于2022年7月20日(星期三)上午9时00分,在苍岭镇人民政府三楼大会议室举行拍卖会,对苍岭镇集镇饱满街摊位经营权进行公开拍卖,现将有关事项公告如下:
一、拍卖标的概况:
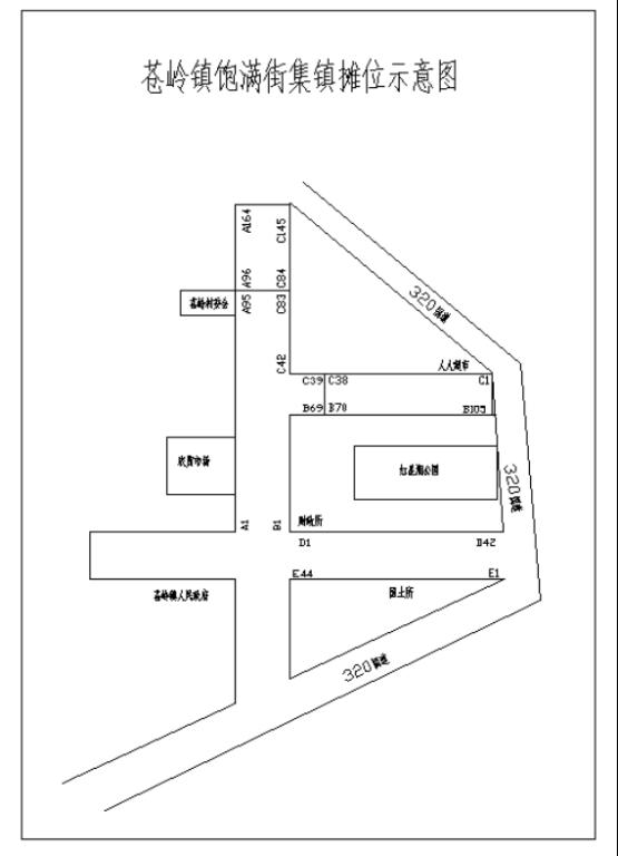
(一)本次拍卖标的苍岭镇集镇饱满街市场摊位共582个:其中拥有日用百货区(A2--A95、B1--B69、C39--C83)、水果小吃饮食区(D1--D42、E1--E44)、蔬菜区(农贸市场G1--G67)、苗木花卉区(B70--B90、C15--C38)、粮食大米区(B91--B105、C1--C14)、畜禽交易区(A96--A164、C83--C145)、杂货区(H1--16)等区域,集镇赶集日人气旺盛,经营购物环境良好。
(二)摊位经营权期限为二年,自2022年7月1日起至2024年6月30日止。
(三)摊位竞拍费用为一年一交,每年8月10日前缴清,竞拍后到期不缴者视为自动放弃。
二、竞买人资格
具有完全民事行为能力和民事权利的自然人,凭本人身份证原件及复印件一份报名。
三、拍卖方式
(一)本次摊位经营权拍卖采取“按行业、分摊位、有底价、明标竞价”方式,按照“价高者得”的原则确定承租人。
(二)每个人可参与多个行业区域的报名,也可以在同一行业承租多个摊位。
四、其它约定
(一)报名地点:苍岭镇苍岭村委会
(二)公告时间:2022年7月6日9:00时至7月19日18:00时。
(三)报名时间:2022年7月6日9:00时至7月19日18:00时。
(四)拍卖地点:苍岭镇人民政府三楼会议室
(五)拍卖时间:2022年7月20日9:00开始至18:00止(如果拍卖摊位没有达到所有摊位的70%,2022年7月27日9:00再进行剩余摊位最后一次拍卖)。
(六)交纳保证金时间:2022年7月19日18:00时截止。
(七)摊位起拍价格:分区域分位置实行不同起拍价,A2--A94、B1--B69、C39--C83、D1--D42、E1--E44、H1--H16及农贸市场摊位G1--G67起拍价为1100元/摊位/年(此区域内没有拍卖成功的摊位作临时摊位处理,按每个街天25元/摊位收费);B70--B104、C1--C38摊位起拍价为600元/摊位/年(此区域内没有拍卖成功的摊位作临时摊位处理,按每个街天15元/摊位收费);畜禽交易市场A95--A110、C84--C100摊位起拍价为1100元/摊位/年;其余未纳入拍卖的摊位作临时摊位处理,临时摊位15元/摊位/街(天)。
(八)竞拍弧度:竞拍一次加价50元,也可以以50元倍数直接叫价。
(九)集镇市场分类别划区域经营后,除了在集镇有商铺竞买自己铺面前的摊位,其余竞买者不得改变区域类别进行经营。
(十)竞买保证金:600元/摊位,竞拍成功后不办理交款手续的竞买保证金不予退还。
(十一)标的展示地点:标的现场;展示时间:镇人民政府公告发布之日起。
五、发布公告的媒介
本次公告在楚雄市人民政府网站等媒体上发布。
六、联系方式
联系人:凡应富、马德才
联系电话:0878-3880033
楚雄市苍岭镇人民政府
2022年7月5日
苍岭镇饱满街集镇摊位示意图
