楚雄·汇丰尚城建设工程竣工规划核实验收公示
楚市自资验收公示〔2025〕15号
项目名称:楚雄·汇丰尚城
项目地点:楚雄市鹿城街道花园路
申报类别:建设工程竣工规划核实验收
申 请 人:楚雄汇丰房地产开发有限公司管理人
验收单位:楚雄市自然资源局
公示时间:2025年8月8日—2025年8月18日
公示地点:楚雄市自然资源局办公区一楼大厅;建设项目现场。
公示网址:http://www.cxs.gov.cn/zfxxgk/bmgk.htm
组织公示单位:楚雄市自然资源局
意见反馈联系电话:3139022 3159991 传真:3159990
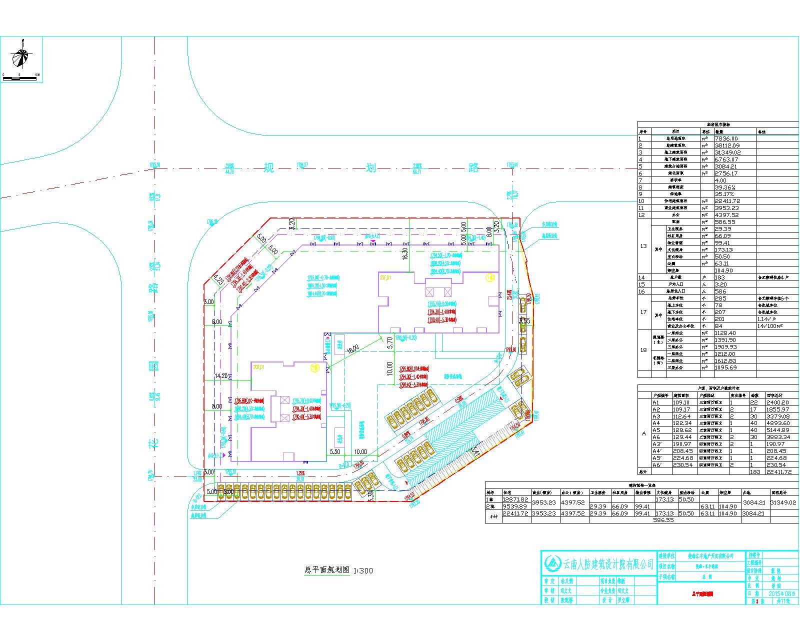
项目简介:楚雄汇丰房地产开发有限公司开发建设的“楚雄·汇丰尚城”建设项目(以下简称“该项目”)位于楚雄市鹿城街道花园路。项目建设单位于2016年1月28日取得“楚雄·汇丰尚城”建设项目编号为建字第532301201600014号的《建设工程规划许可证》,许可总建筑面积38112.09㎡,其中地上建筑面积31349.02㎡,地下建筑面积6763.07㎡,许可内容为高层底商、办公及住宅楼2栋含三层裙楼,地下车库一个。
2024年9月楚雄汇丰房地产开发有限公司管理人(以下简称“管理人”)向我局申请对该项目进行规划核实验收。依据管理人提供的由云南振翔测绘信息科技有限公司出具的“楚雄·汇丰尚城”建设项目规划竣工测量报告及房屋规划竣工实测建筑面积测算报告,经现场踏勘与规划比对审核,该项目建设存在与审定规划及规划许可内容不符情况,不满足建设工程竣工规划核实验收有关规定。我局针对存在问题于2024年9月26日下达整改通知,要求管理人对项目建设存在问题进行必要的整改,管理人历时近一年的整改,仍存在部分问题未整改到位,影响该项目规划核实验收及小区业主不动产权证的办理。根据国家、省、州、市“关于化解房地产不动产登记历史遗留问题”的有关文件精神,为加快推进该项目竣工规划核实验收及不动产权证登记,管理人针对该项目建设部分配套服务设施调整及其他与审定规划不符内容情况,征求了该项目购房人(相关利害关系人)意见。根据管理人提供资料,该项目住建部门登记备案共165套(面积22954.07㎡),管理人已向该备案中的131套(面积15729.47㎡)购房人完成了征求意见,其中123户(面积14790.63㎡)购房人同意按实际建设情况进行规划核实验收,8户不同意按实际建设情况进行规划验收,其征求购房人(相关利害关系人)意见及专属建筑面积占已登记备案的三分之二以上,且同意比例超出征求意见购房人的四分之三以上,满足相关要求。
经测绘单位实测和现场比对,该项目主要经济技术指标对比如下:
验收项目 |
审定规划 |
规划许可 |
实测 |
验收结论 |
|
用地性质 |
商住用地 |
商住用地 |
商住用地 |
用地性质一致 |
|
用地面积(㎡) |
7836.00 |
/ |
7836.00 |
用地面积一致 |
|
建筑占地面积(㎡) |
3084.21 |
/ |
3110.52 |
高于审定规划26.31㎡ |
|
绿地率% |
35.17 |
/ |
16.96 |
低于审定规划18.21%,项目实测绿地面积低于规划1426.93㎡ |
|
建筑密度% |
39.36 |
/ |
39.70 |
高于审定规划0.34% |
|
容积率 |
4.00 |
/ |
3.96 |
低于审定规划0.04 |
|
总建筑面积(㎡) |
38112.09 |
38112.09 |
37769.95 |
低于审定规划及规划许可342.14㎡ |
|
其中 |
地上 |
31349.02 |
31349.02 |
31044.94 |
低于审定规划及规划许可304.08㎡ |
地下 |
6763.07 |
6763.07 |
6725.01 |
低于审定规划及规划许可38.06㎡ |
|
计容建筑面积(㎡) |
31349.02 |
/ |
31044.94 |
低于规划304.08㎡ |
|
建筑层数 |
地上 |
二十层、二十五层 |
二十层、二十五层 |
二十层、二十五层 |
符合审定规划及规划许可 |
地下 |
一层 |
一层 |
一层 |
||
机动车停车泊位(个) |
285 |
/ |
179 |
低于审定规划106个 |
|
其中 |
地上 |
78 |
/ |
27 |
地上机械车位未按审定规划实施,实测停车位低于规划51个 |
地下 |
207 |
/ |
152 |
地下室机械车位未按审定规划实施,实测停车位低于规划55个 |
|
此外,该项目1-404、1-405、1-402、2-401、2-403、2-404室存在违规侵占第四层公共屋面行为;2-504、2-704、2-804、2-1004、2-1104、2-1204、2-1304、2-1504、2-1604、2-1704室存在违规占用结构板纳入房间使用行为;1-2402、2-1901室存在于空中花园及中空部分违规搭建行为。按照相关法律法规以及楚雄市违法违规建筑清理整治相关要求,上述18套房屋暂不给予规划核实验收和办理不动产权登记手续,待上述18套房屋违建部分处理完毕后,按建筑单体工程进行规划核实验收,规划核实验收通过后方可办理不动产权登记等手续。
依据相关法律法规规定和程序要求,现特对“楚雄·汇丰尚城”项目建设工程进行规划核实验收前公示,如对“楚雄·汇丰尚城”项目建设工程竣工规划核实验收有异议的请在公示期限内与我局联系。
附件:1.“楚雄·汇丰尚城”规划核实验收位置示意图;
2.“楚雄·汇丰尚城”建设项目修建性详细规划总平面规划图;
3.“楚雄·汇丰尚城”规划验收实测对比图;
4.“楚雄·汇丰尚城”规划核实验收存在问题业主征求意见的公告及业主意见征询投票表决结果明细表。
楚雄市自然资源局
2025年8月8日


