楚市自然资源公示〔2025〕42号
项目名称:楚雄滨湖一号建设项目修建性详细规划(变更2025年7月23日)
申报类别:规划审批
申报单位:楚雄市中邦房地产开发有限公司
规划审批单位:楚雄市自然资源局
公示类别:批前公示
公示时间:2025年7月23日至2025年7月31日
公示地点:楚雄市自然资源局办公区一楼大厅、施工现场、售楼部
公示网址:http://www.cxs.gov.cn/zfxxgk/bmgk.htm
公示组织单位:楚雄市自然资源局
意见反馈联系电话:3159106 3159991 传真:3159990
项目简介:楚雄滨湖一号建设项目用地位于楚雄市东南新城北部,地块东临航空路,南临东兴路,西临气象小区用地,北临鹿城东路,规划用地面积23.57亩,该项目修建性详细规划(变更)于2025年4月29日审定,现楚雄市中邦房地产开发有限公司根据《楚雄州人民政府办公室关于印发楚雄州促进房地产市场平稳健康发展18条措施的通知》(楚政办通〔2024〕24号)及《关于促进楚雄市房地产业高质量发展的实施意见》(楚市政办通〔2024〕29号)文件有关规定,在保持项目总体规划布局不变,各项经济技术指标均满足相关要求的前提下,对楚雄滨湖一号建设项目修建性详细规划进行如下变更:
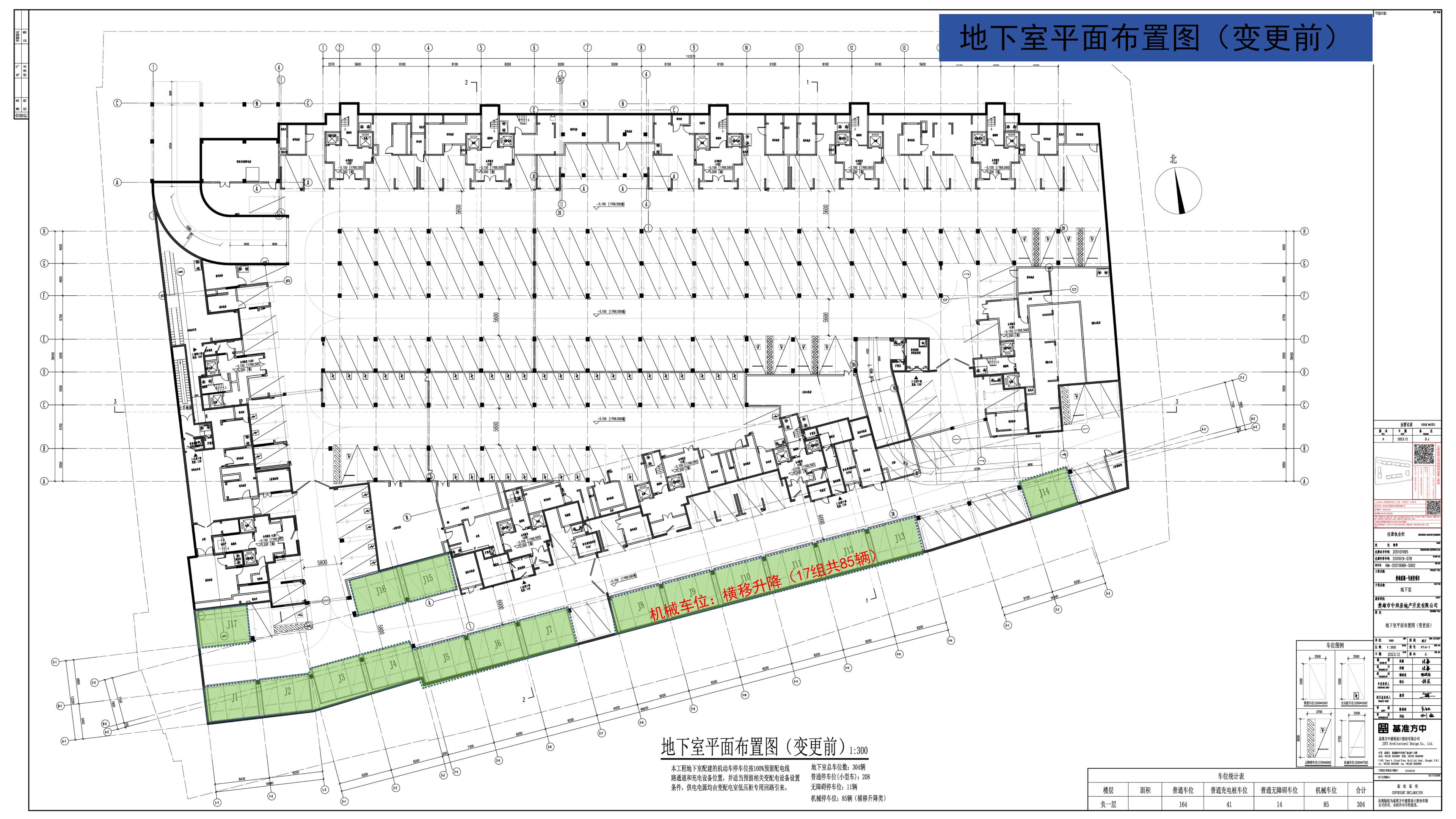
一、项目总机动车停车位384个保持不变,地上停车位由80个调整为63个;地下机械停车位由横移升降类调整为垂直升降,地下停车位数量由304个调整为321辆。
二、绿地面积由6050.40㎡调整为6284.15㎡,绿地率由38.51%调整为40.00%。
调整变更具体情况如下:
楚雄滨湖一号建设项目修建性详细规划变更前后主要经济技术指标对比表
名 称 |
变更前 经济技术指标 |
变更后 经济技术指标 |
变化情况 |
||
规划用地面积(㎡) |
15712.07 |
15712.07 |
0 |
||
总建筑面积(㎡) |
59882.66 |
59882.66 |
0 |
||
计容建筑面积(㎡) |
48684.16 |
48684.16 |
0 |
||
建筑占地面积(㎡) |
3452.95 |
3452.95 |
0 |
||
容积率 |
3.1 |
3.1 |
0 |
||
建筑密度(%) |
21.98 |
21.98 |
0 |
||
绿地面积(㎡) |
6050.40 |
6284.15 |
﹢233.75 |
||
绿地率(%) |
38.51 |
40.00 |
﹢1.49 |
||
户数 |
376 |
376 |
0 |
||
机动车停车位(个) |
384 |
384 |
0 |
||
其中 |
地上机动车停车位 |
80 |
63 |
-17 |
|
地下机动车停车位 |
304 |
321 |
+17 |
||
其中 |
普通机动车停车位 |
219 |
219 |
0 |
|
机械机动车停车位 |
85 |
102 |
+17 |
||
非机动车停车位数量(个) |
144(均为地下) |
144(均为地下) |
0 |
||
为促进房地产市场平稳健康高质量发展,现对其规划调整变更内容进行批前公示,如对项目规划调整变更有异议的请在公示期限内与我局联系。
附件:1.区位分析图;
2. 总平面布置图(变更前);
3. 总平面布置图(变更后);
4. 地下室平面布置图(变更前);
5. 地下室平面布置图(变更后);
6. 变更前后指标对比表。
楚雄市自然资源局
2025年7月23日





