审批公示
楚市自然资源公示〔2025〕13号
项目名称:楚雄滨湖一号建设项目修建性详细规划(变更)
申报类别:规划审批
申报单位:楚雄市中邦房地产开发有限公司
规划审批单位:楚雄市自然资源局
公示类别:批前公示
公示时间:2025年3月21日至2025年3月31日
公示地点:楚雄市自然资源局办公区一楼大厅、施工现场、售楼部
公示网址:http://www.cxs.gov.cn/zfxxgk/bmgk.htm
公示组织单位:楚雄市自然资源局
意见反馈联系电话:3159106 3159991 传真:3159990
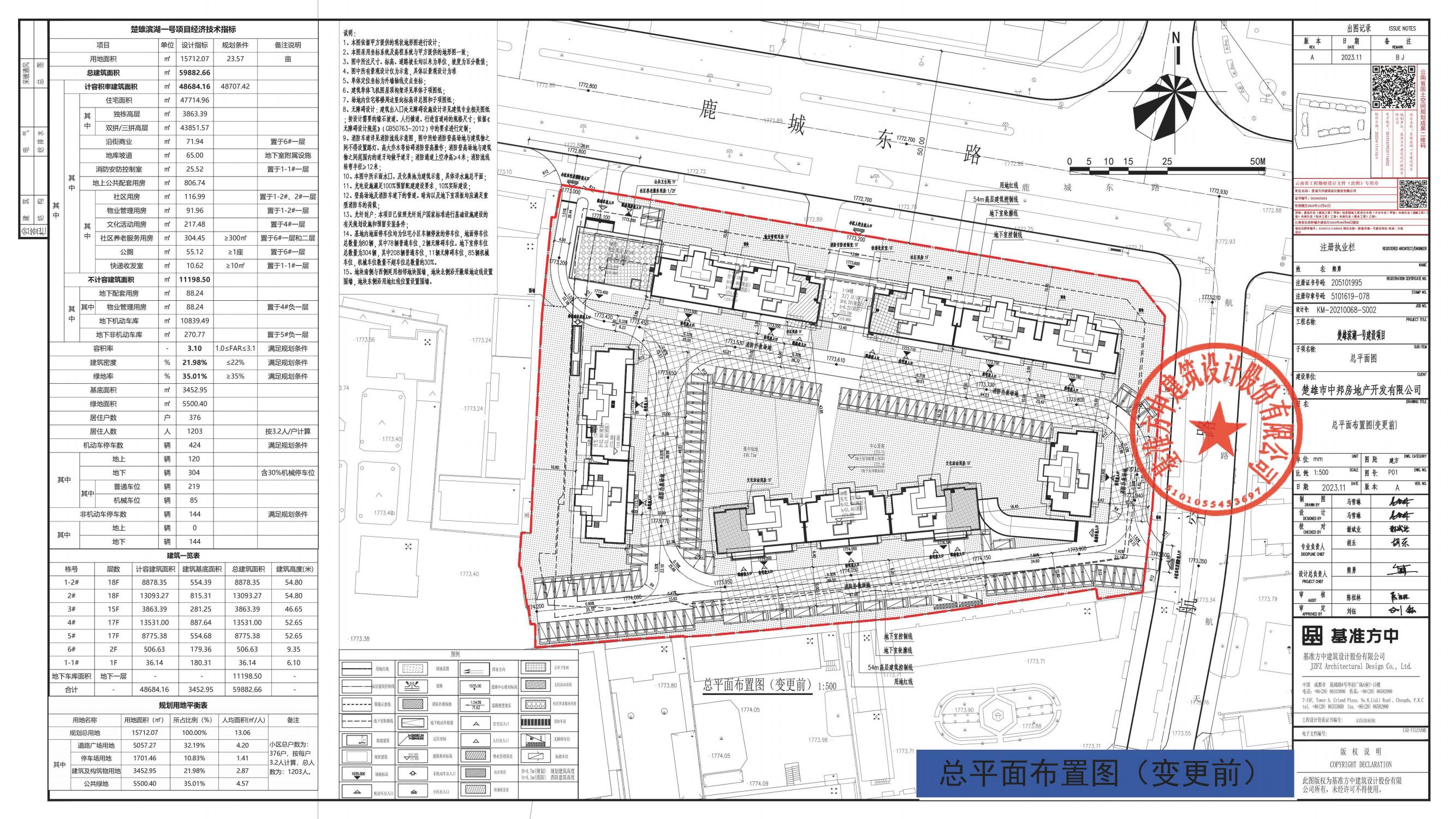
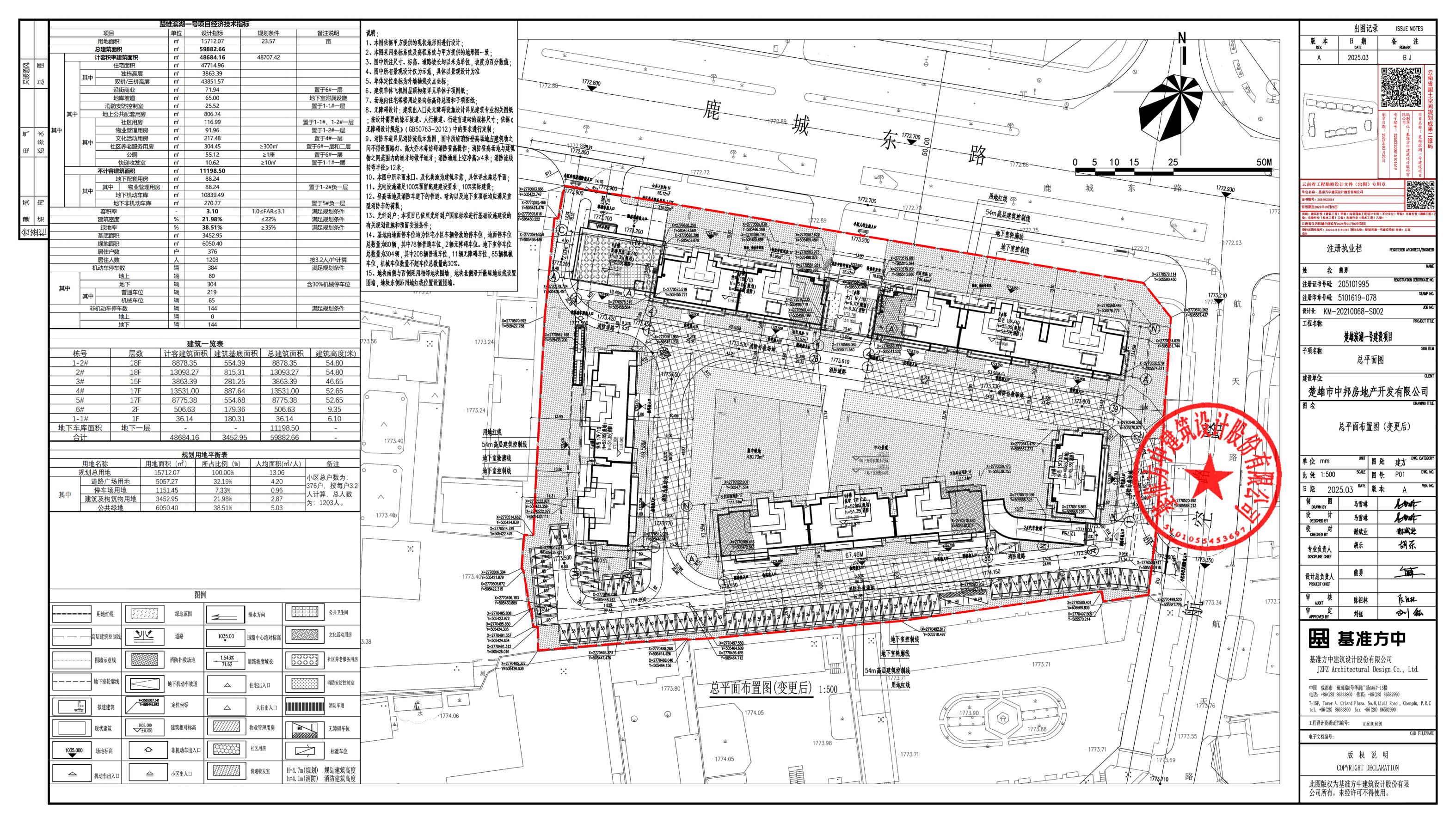
项目简介:楚雄滨湖一号建设项目用地位于楚雄市东南新城北部,地块东临航空路,南临东兴路,西临气象小区用地,北临鹿城东路,规划用地面积23.57亩,该项目修建性详细规划于2023年11月审定实施。现楚雄市中邦房地产开发有限公司提出,根据《楚雄州人民政府办公室关于印发楚雄州促进房地产市场平稳健康发展18条措施的通知》(楚政办通〔2024〕24号)及《关于促进楚雄市房地产业高质量发展的实施意见》(楚市政办通〔2024〕29号)文件有关规定和要求,在保持项目各项经济技术指标均满足相关要求的前提下,对楚雄滨湖一号建设项目修建性详细规划进行如下变更:
一、机动车停车位总数由424个(地上120个,地下304个)调整为384个(地上80个,地下384个),共计取消地上机动车停车位40个。
二、绿地面积由5500.40㎡调整为6050.40㎡,增加550㎡;绿地率由35.01%调整为38.51%。
楚雄滨湖一号建设项目修建性详细规划
变更前后主要经济技术指标对比表
名称 |
变更前 经济技术指标 |
变更后 经济技术指标 |
变化情况 |
||
规划用地面积(㎡) |
15712.07 |
15712.07 |
0 |
||
总建筑面积(㎡) |
59882.66 |
59882.66 |
0 |
||
计容建筑面积(㎡) |
48684.16 |
48684.16 |
0 |
||
建筑占地面积(㎡) |
3452.95 |
3452.95 |
0 |
||
容积率 |
3.1 |
3.1 |
0 |
||
建筑密度(%) |
21.98 |
21.98 |
0 |
||
绿地面积(㎡) |
5500.40 |
6050.40 |
﹢550.00 |
||
绿地率(%) |
35.01 |
38.51 |
﹢3.5 |
||
户数 |
376 |
376 |
0 |
||
机动车停车位(个) |
424 |
384 |
﹣40 |
||
其中 |
地上机动车停车位 |
80 |
40 |
﹣40 |
|
地下机动车停车位 |
304 |
304 |
0 |
||
其中 |
普通机动车停车位 |
219 |
219 |
0 |
|
机械机动车停车位 |
85 |
85 |
0 |
||
非机动车停车位数量(个) |
144(均为地下) |
144(均为地下) |
0 |
||
目前,该项目共销售住宅81套,项目建设单位按照建设项目规划设计方案修改的有关规定,根据销售情况已完成购房人(利害关系人)征求意见共66户,征求利害关系人意见户数超过已售户数的三分之二,其中明确同意66户,同意户数超过已售户数的四分之三,满足规划调整变更相关规定。为促进房地产市场平稳健康高质量发展,现对其规划调整变更内容进行批前公示,如对项目规划调整变更有异议的请在公示期限内与我局联系。
附件:1.区位分析图
2.总平面图(修改前)
3.总平面图(修改后)
4.变更前后指标对比表
5.征求业主意见书及统计表
楚雄市自然资源局
2025年3月21日







