楚雄市自然资源局自建房屋建设工程规划许可公示
楚市自资规划许可公示〔2025〕2号
项目名称:谢贵平危房拆除重建项目
申报类别:建设工程规划许可审批
申 请 人:谢贵平
规划许可审批单位:楚雄市自然资源局
公示类别:批前公示
公示时间:2025年3月13日—2025年3月21日
公示地点:楚雄市鹿城镇水闸口村
公示网址:http://www.cxs.gov.cn/zfxxgk/bmgk.htm
组织公示单位:楚雄市自然资源局
项目地点:楚雄市鹿城镇水闸口村
意见反馈联系电话:3139022 3159991 传真:3159990
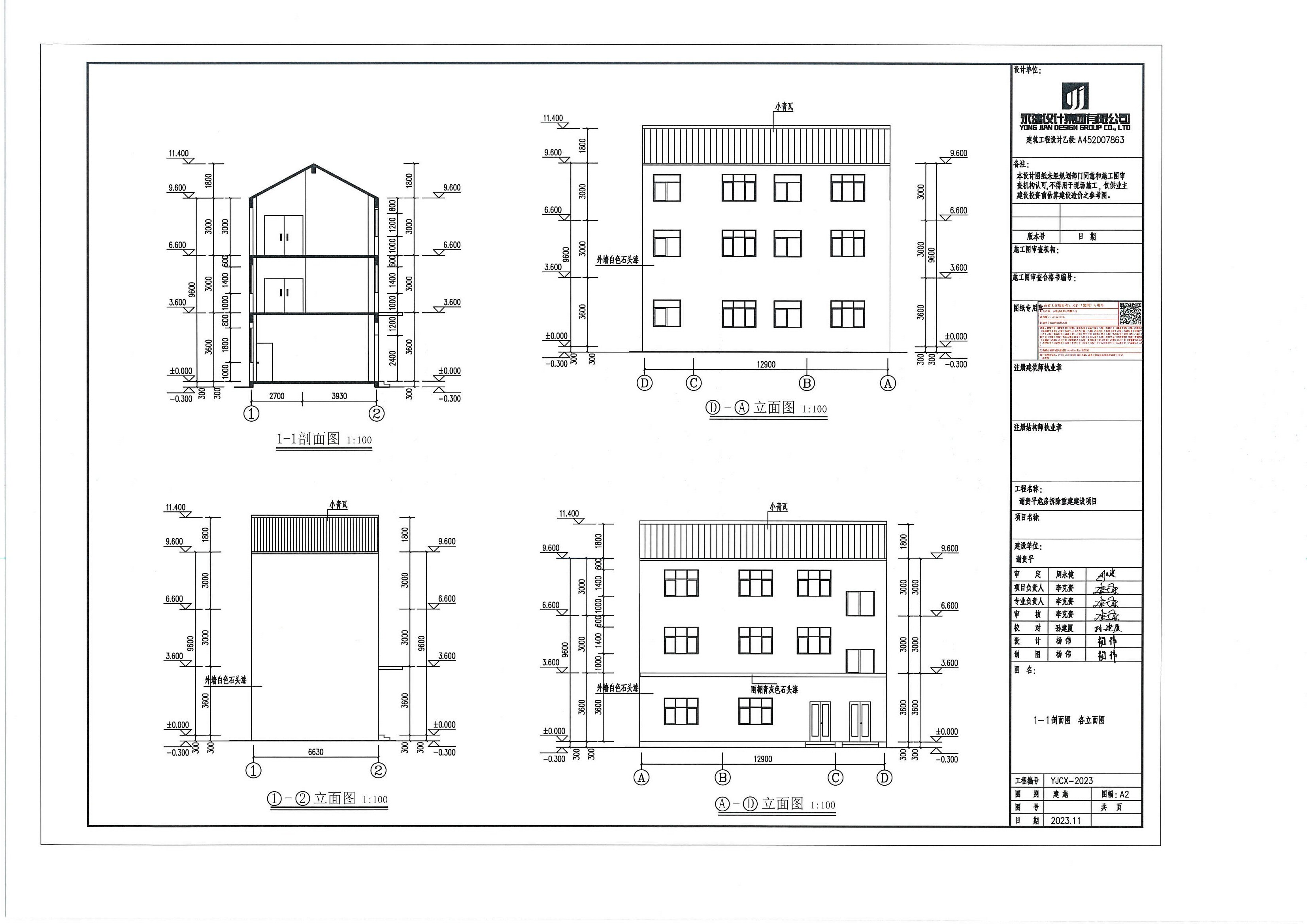
项目简介:谢贵平危房拆除重建项目建设地块位于楚雄市鹿城镇水闸口村,东临水闸口农贸市场。谢贵平现居住房屋经房屋危险性鉴定为D级危房,存在安全隐患。现谢贵平向我局提出危房拆除重建申请,拟在其宗地范围内建盖一栋钢筋混凝土框架结构三层房屋,建筑占地面积89.47㎡,总建筑面积268.41㎡,建筑高度10.80m。依据建设工程规划许可审批有关规定现就谢贵平建房内容进行批前公示,如对该规划许可审批有异议的请在公示期限内与我局联系。
附件:1、谢贵平自建房设计方案总平面图;
2、谢贵平自建房设计方案立面图及剖面图。
楚雄市自然资源局
2025年3月13日

