楚雄市自然资源局自建房屋建设工程规划许可公示
项目名称:刘忠德自建房屋
申报类别:建设工程规划许可审批
申 请 人:刘忠德
规划许可审批单位:楚雄市自然资源局
公示类别:批前公示
公示时间:2025年3月3日—2025年3月11日
公示地点:楚雄市团结路南段延长线恒浩新空间住宅小区北侧项目建设地点、楚雄市自然资源局办公区一楼大厅。
公示网址:http://www.cxs.gov.cn/zfxxgk/bmgk.htm
组织公示单位:楚雄市自然资源局
项目地点:楚雄市团结路南段延长线恒浩新空间住宅小区北侧
意见反馈联系电话:3139022 3159991 传真:3159990
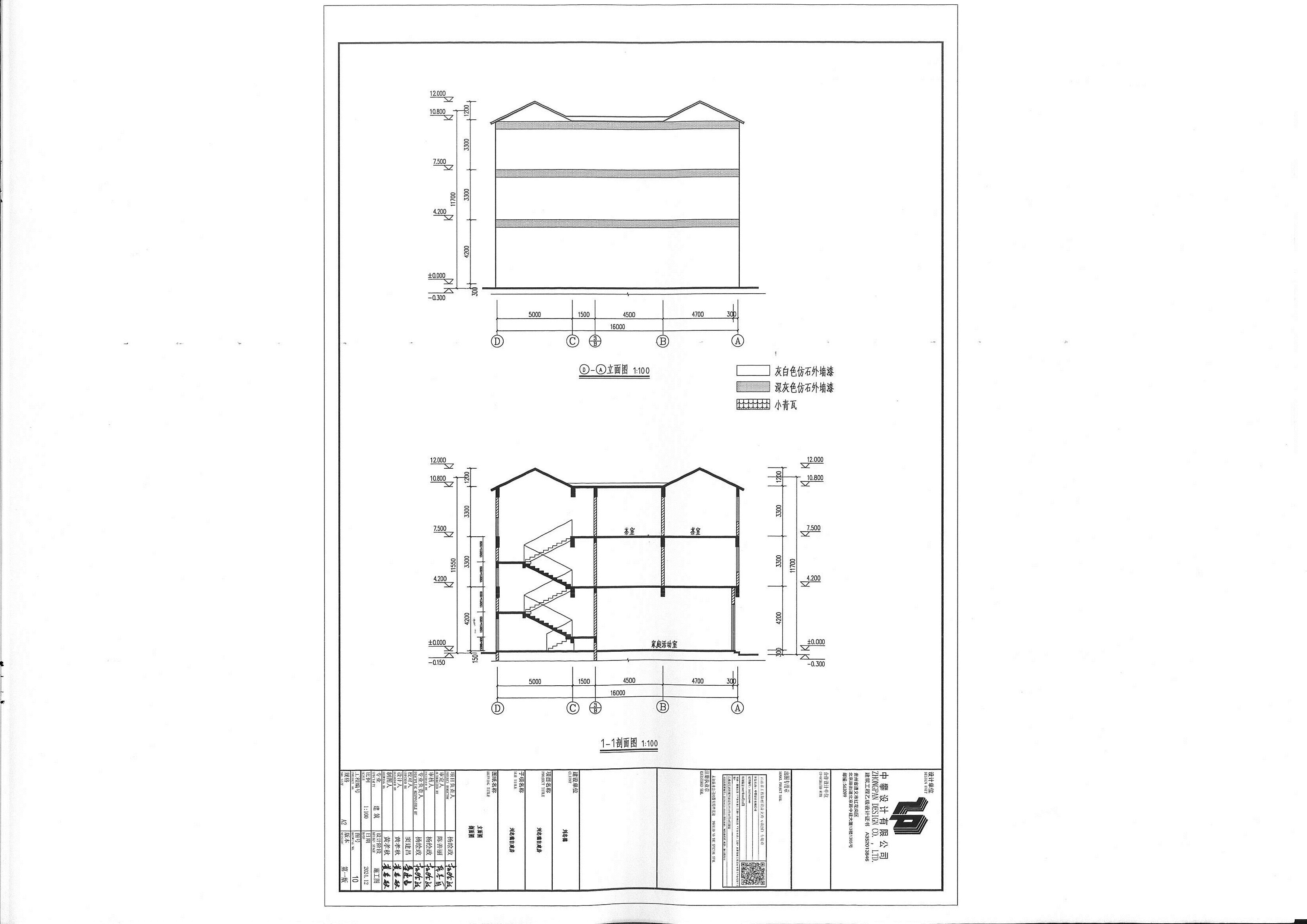
项目简介:刘忠德户安置地块东临团结路,南临恒浩新空间项目用地,现刘忠德向我局提出建房申请,拟在其安置宗地范围内建盖一栋钢筋混凝土框架结构三层房屋,建筑占地面积310.4㎡,总建筑面积871.12㎡,建筑高度11.7m。依据建设工程规划许可审批有关规定现就刘忠德建房内容进行批前公示,如对该规划许可审批有异议的请在公示期限内与我局联系。
附件:1、刘忠德自建房设计方案总平面图;
2、刘忠德自建房设计方案立面图;
3、刘忠德自建房设计方案剖面图;
4、刘忠德自建房设计方案效果图。
楚雄市自然资源局
2025年3月3日



