楚雄市自然资源局对建设项目规划
核实验收公示
楚市自资验收公示〔2025〕2号
项目名称:楚雄新鸥鹏教育小镇4-1#地块B区3#、4#建筑
申报类别:建设工程规划核实验收
申 请 人:云南楚鸥教育产业有限责任公司
核实单位:楚雄市自然资源局
公示时间:2025年1月14日—2025年1月22日
公示地点:楚雄市自然资源局办公区一楼大厅;建设项目售楼部,建设项目施工现场。
公示网址:http://www.cxs.gov.cn/zfxxgk/bmgk.htm
组织公示单位:楚雄市自然资源局
项目地点:楚雄职教中心东南侧、青龙河西路西侧
意见反馈联系电话:3139022 3159991 传真:3159990
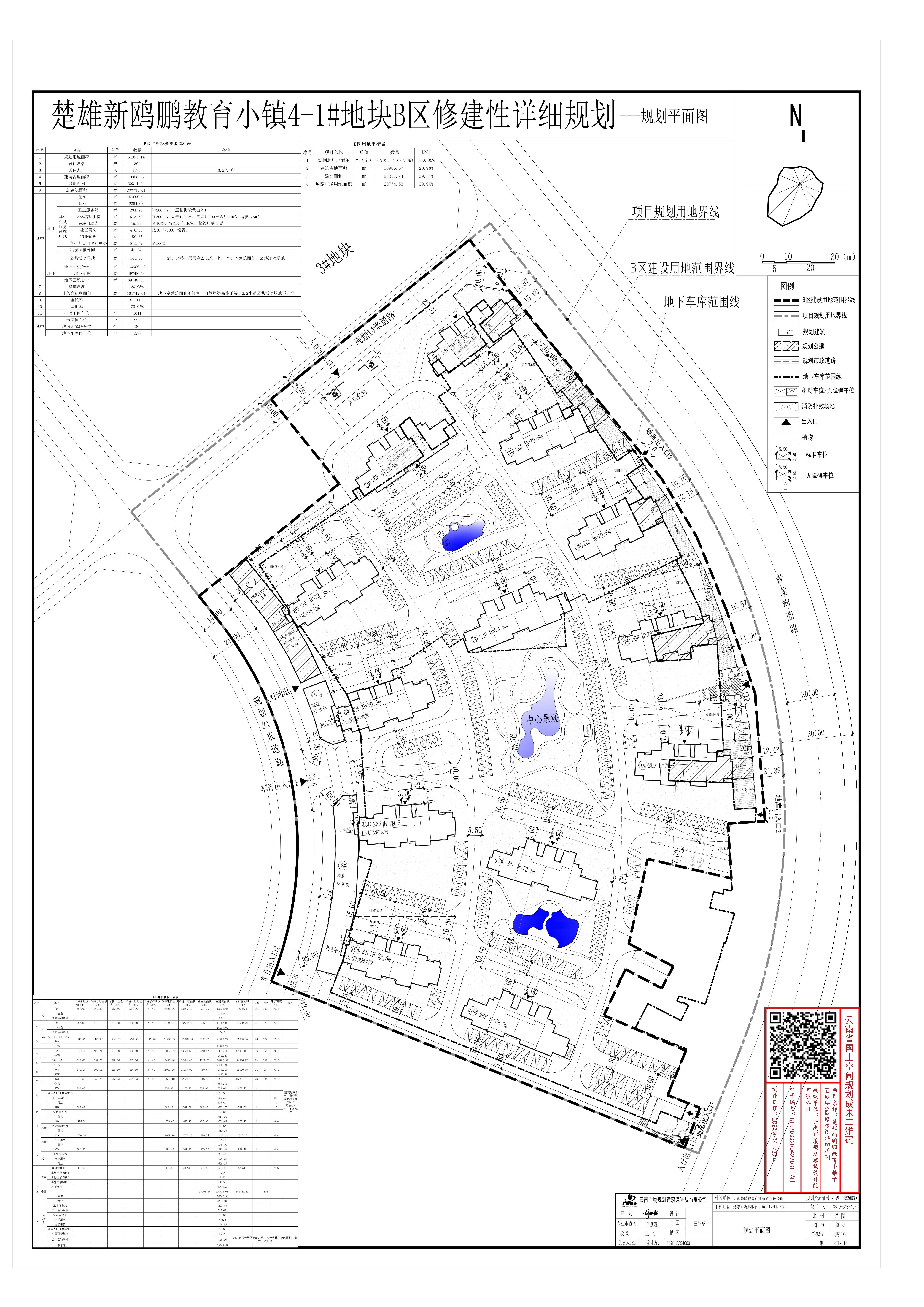
项目简介:云南楚鸥教育产业有限责任公司开发建设的“楚雄新鸥鹏教育小镇4-1#地块B区”项目位于楚雄市职教中心东南侧、青龙河西路西侧。其规划用地面积51993.14㎡,总建筑面积200735.01㎡(其中地上建筑面积160986.43㎡,地下建筑面积39748.58㎡),计容建筑面积161742.61㎡,容积率3.11,建筑密度20.98%,绿地率39.07%,机动车停车位1611个(其中地面停车位298个,地面无障碍停车位36个,地下车库停车位1277个)。2020年6月1日,项目建设单位取得了楚雄新鸥鹏教育小镇4-1#地块B区编号为建字第楚雄市202000038号的《建设工程规划许可证》。本次规划验收的内容为楚雄新鸥鹏教育小镇4-1#地块B区3#、4#楼,该2栋建筑规划建筑面积23001.96㎡,计容建筑面积22937.06㎡,规划许可建筑面积23001.96㎡。
2024年12月云南楚鸥教育产业有限责任公司向我局申请对“楚雄新鸥鹏教育小镇4-1#地块B区”项目中的3#、4#楼建筑按单体建设工程进行规划验收。为加快推进该项目已实施完成部分建筑规划核实验收及不动产权登记相关工作,项目建设单位按照相关规定于2024年12月23日起针对本次规划验收范围项目实际建设情况征求了3#、4#楼建筑购房人(相关利害关系人)意见。根据云南楚鸥教育产业有限责任公司提供的相关资料,上述2栋建筑住建部门登记备案共191套(建筑面积22047.15㎡),项目建设单位已向该备案的191套中的148户(建筑面积16927.56㎡)购房人(相关利害关系人)完成了征求意见,其中132户(建筑面积15088.35㎡)购房人(相关利害关系人)同意按实际建设情况对3#、4#楼进行单体建设工程规划验收,其征求意见购房人(相关利害关系人)及专属建筑面积占已登记备案的三分之二以上,且同意比例超出征求意见购房人(相关利害关系人)的四分之三以上,同意按实际建设情况进行规划验收比例满足相关规定。
经测绘单位实测和现场比对,“楚雄新鸥鹏教育小镇4-1#地块B区”3#、4#楼建筑实测总建筑面积23071.23㎡(均为地上面积,高于规划及规划许可69.27㎡),计容建筑面积23006.09㎡(高于规划69.03㎡)。因“楚雄新鸥鹏教育小镇4-1#地块B区”项目整体暂未实施完毕,待该项目整体实施建设完成后再将本次申请规划验收的上述建筑经济技术指标纳入项目整体进行统一核算和整体验收。为加快推进该项目已实施完成部分建筑规划核实验收及不动产权证登记相关工作,切实维护广大业主(购房人)的合法权益,现拟对“楚雄新鸥鹏教育小镇4-1#地块B区”3#、4#楼建筑按照单体建设工程进行规划验收,根据有关规定和程序要求特进行规划验收前公示,如对“楚雄新鸥鹏教育小镇4-1#地块B区”3#、4#楼建筑建设内容规划验收有异议的请在公示期限内与我局联系。
附件内容:1.楚雄新鸥鹏教育小镇4-1#地块B区3#、4#楼建筑验收位置示意图;
2.楚雄新鸥鹏教育小镇4-1#地块B区项目修建性详细规划总平面图;
3.楚雄新鸥鹏教育小镇4-1#地块B区3#、4#楼建筑规划验收实测对比图;
4.楚雄新鸥鹏教育小镇4-1#地块B区3#、4#楼单体规划验收征求意见书及征求意见表。
楚雄市自然资源局
2025年1月14日


