楚雄市自然资源局建设项目行政
审批公示
楚市自然资源公示〔2024〕045号
项目名称:楚雄市西城加油加气站及汽车服务设施配套建设项目修建性详细规划
申报类别:规划审批
申报单位:楚雄云特石化有限公司
规划审批单位:楚雄市自然资源局
公示类别:批前公示
公示时间:2024年10月31日至2024年11月8日
公示地点:楚雄市自然资源局办公区一楼大厅、施工现场
公示网址:http://www.cxs.gov.cn/zfxxgk/bmgk.htm
公示组织单位:楚雄市自然资源局
意见反馈联系电话:3159106 3159991 传真:3159990
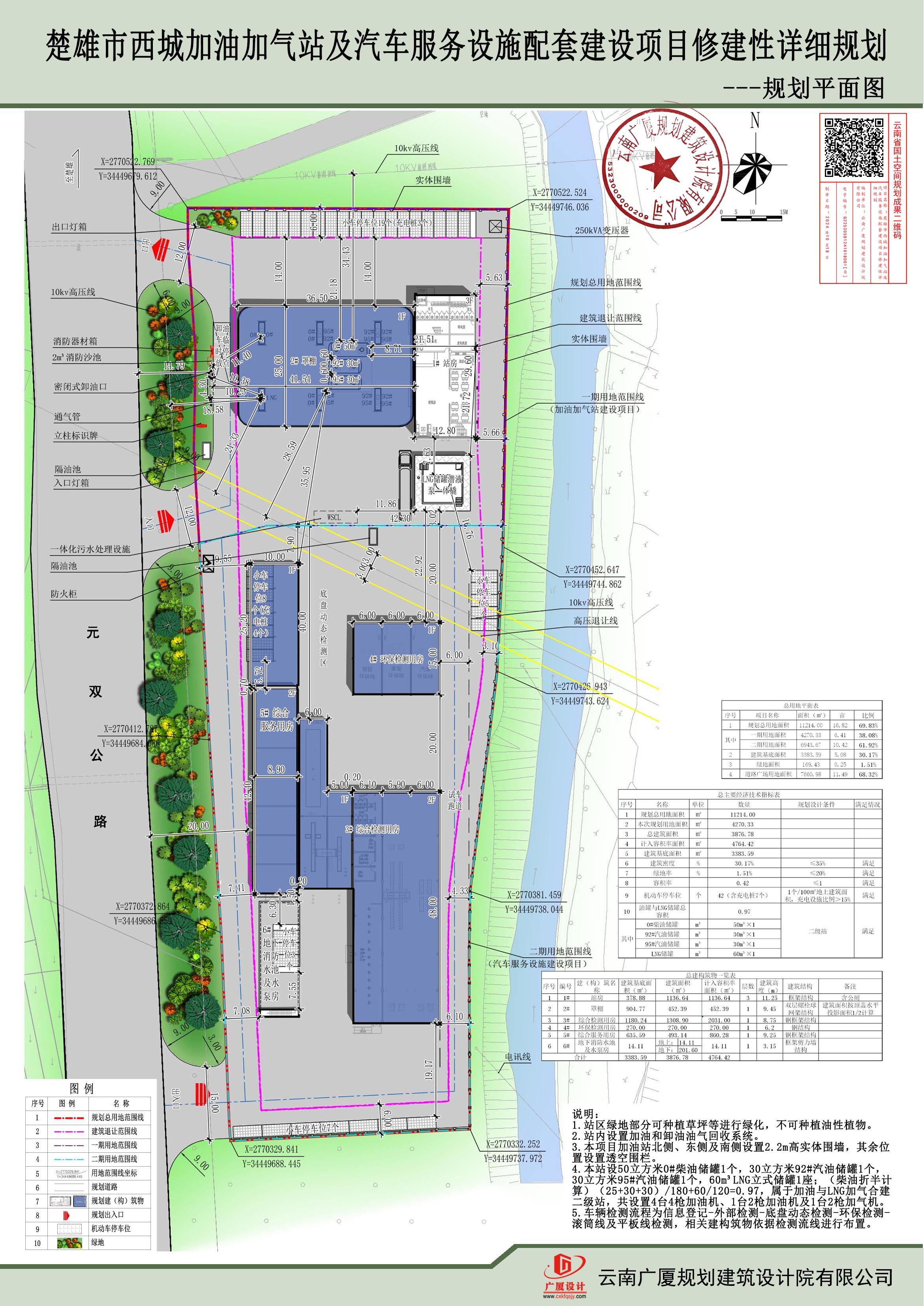
项目简介:楚雄市西城加油加气站及汽车服务设施配套建设项目用地位于楚雄市鹿城镇河前社区,地块东、南临现状山体,西临元双公路,北临10kv高压走廊,规划用地面积约16.82亩。通过规划拟新建一座二级加油加气站及配套设施,项目分两期实施建设。
审批概况:
规划用地面积:11214.00㎡
总建筑面积:3876.78㎡
建筑基底面积:3383.59㎡
建筑密度:30.17%
计容建筑面积:4764.42㎡
容积率:0.42
绿地面积:169.43㎡
绿地率:1.51%
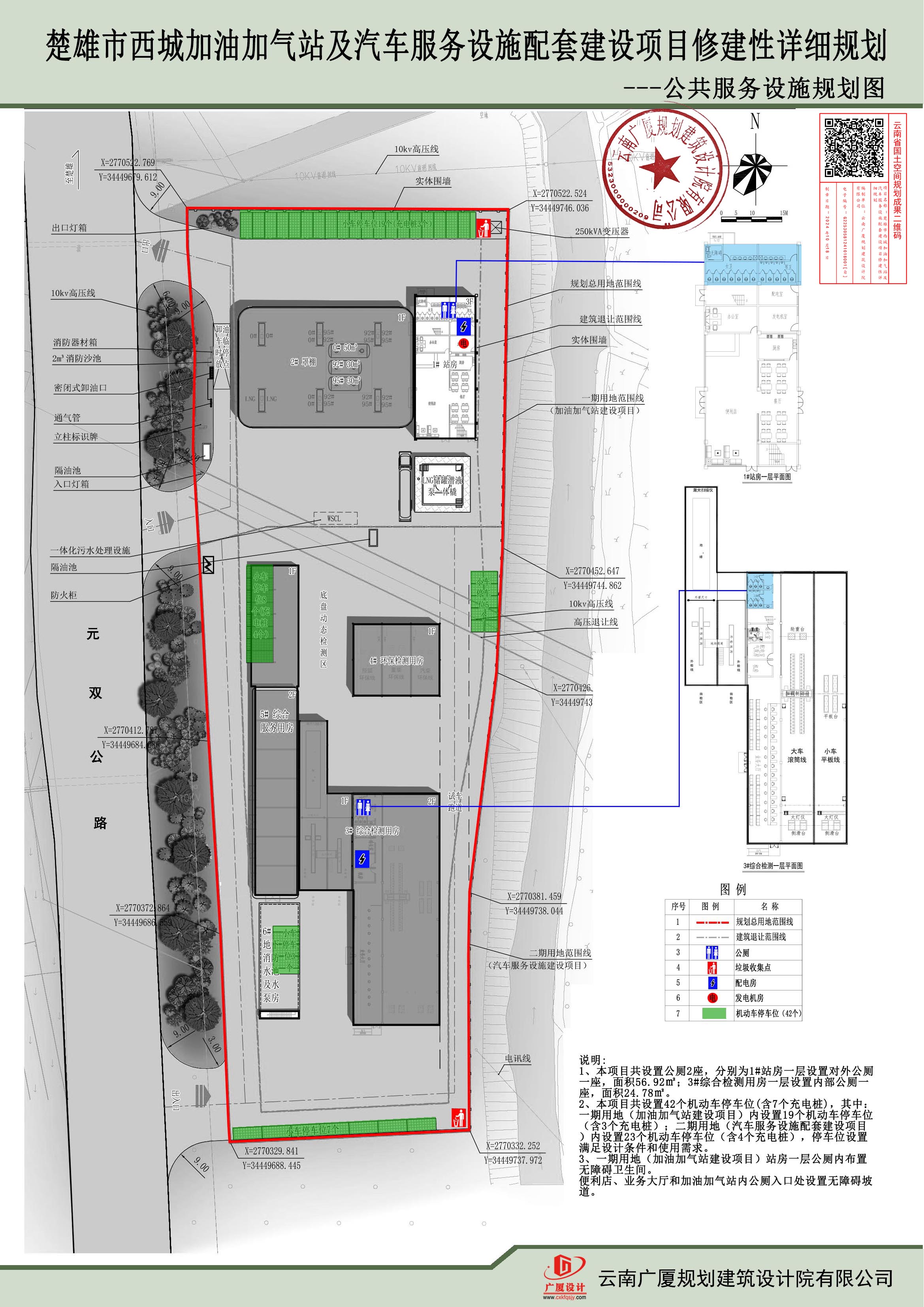
机动车停车位:42个(含充电桩7个)
一期经济技术指标:
一期规划用地面积:4270.33㎡
一期建筑面积:1589.03㎡
一期建筑基底面积:1283.65㎡
一期建筑密度:30.06%
一期计容建筑面积:1589.03㎡
一期容积率:0.37
一期绿地面积:169.43㎡
一期绿地率:3.97%
一期机动车停车位:19个(含充电桩3个)
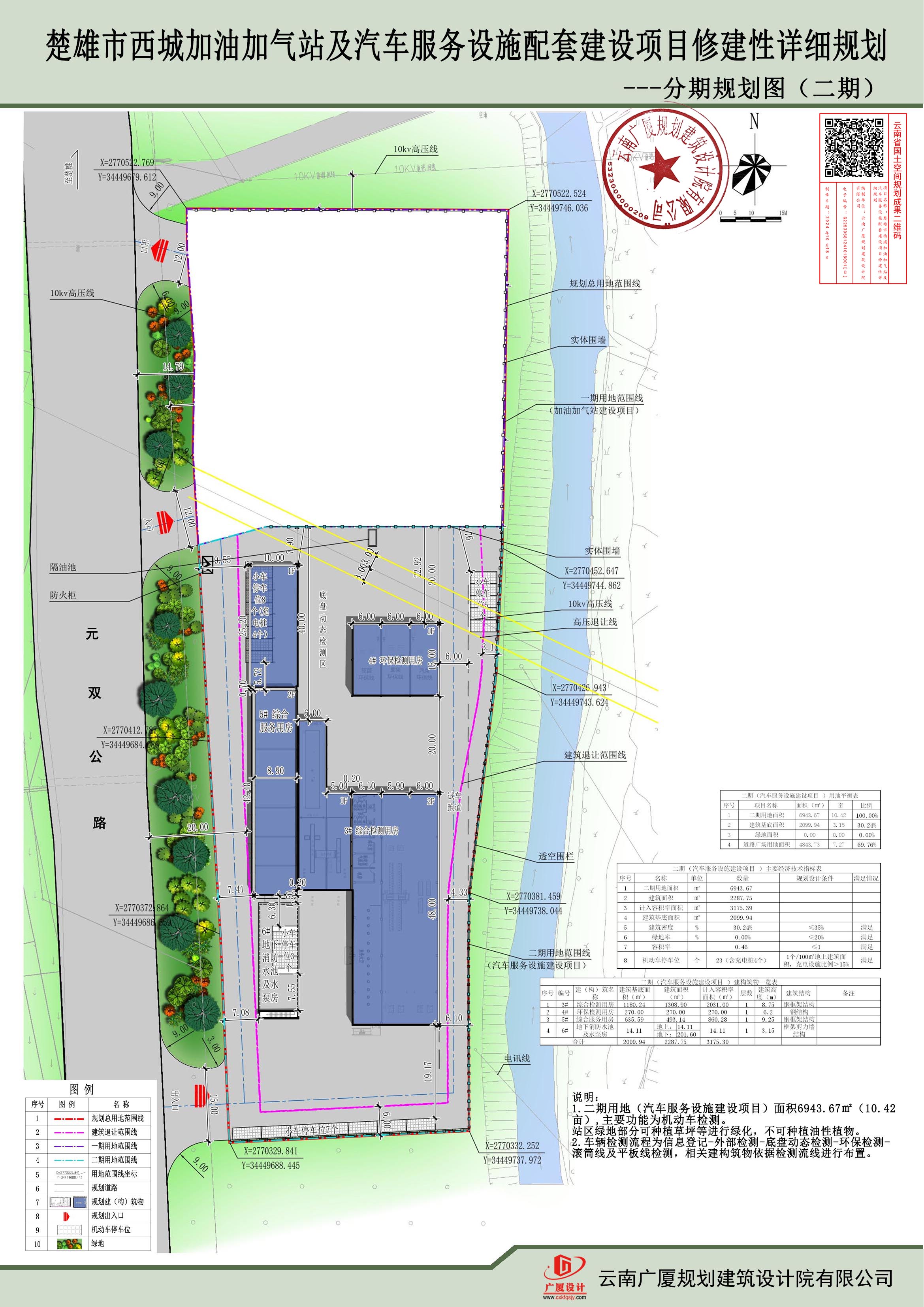
二期经济技术指标:
二期规划用地面积:6943.67㎡
二期建筑面积:2287.75㎡
二期建筑基底面积:2099.94㎡
二期建筑密度:30.24%
二期计容建筑面积:3175.39㎡
二期容积率:0.46
二期绿地面积:0㎡
二期绿地率:0%
二期机动车停车位:23个(含充电桩4个)
楚雄市自然资源局
2024年10月31日






