审批公示
楚市自然资源公示〔2024〕038号
项目名称:楚雄天一公园首府三期修建性详细规划(变更)
申报类别:规划审批
申报单位:楚雄三桥房地产开发有限公司
规划审批单位:楚雄市自然资源局
公示类别:批前公示
公示时间:2024年9月13日至2024年9月24日
公示地点:楚雄市自然资源局办公区一楼大厅、施工现场、售楼部
公示网址:http://www.cxs.gov.cn/zfxxgk/bmgk.htm
公示组织单位:楚雄市自然资源局
意见反馈联系电话:3159106 3159991 传真:3159990
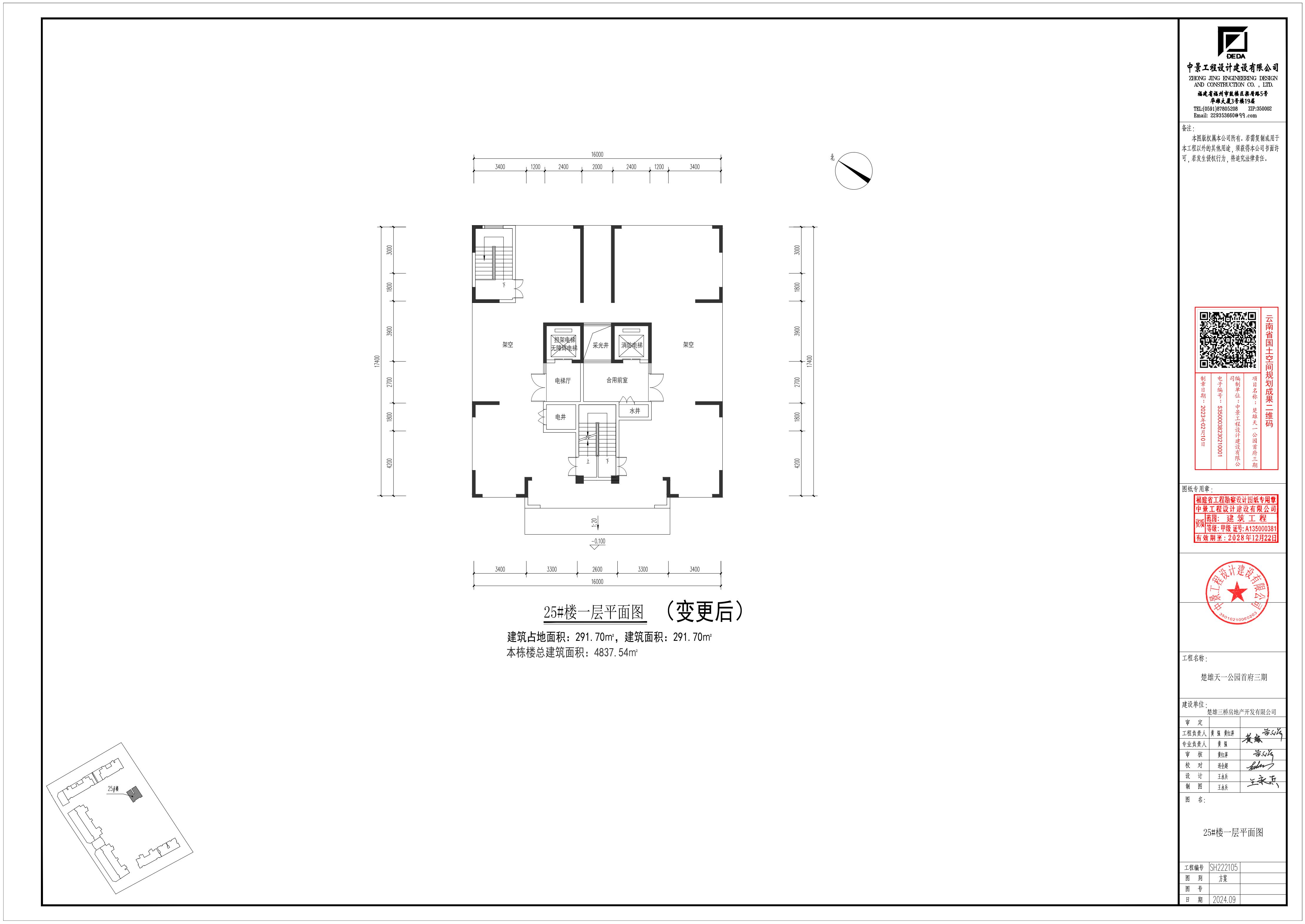
项目简介:楚雄天一公园首府三期项目用地位于楚雄市东南新城东部,地块东临现状空地,南临雍和居小区,西临雄宝路,北临楚雄天一公园首府二期项目用地,规划用地面积为35.37亩。该项目修建性详细规划于2023年3月审定实施,现楚雄三桥房地产开发有限公司提出在该项目保持整体布局不变,各项经济技术指标满足相关规范要求、技术标准的前提下,对25#楼建筑单体设计方案进行如下变更:
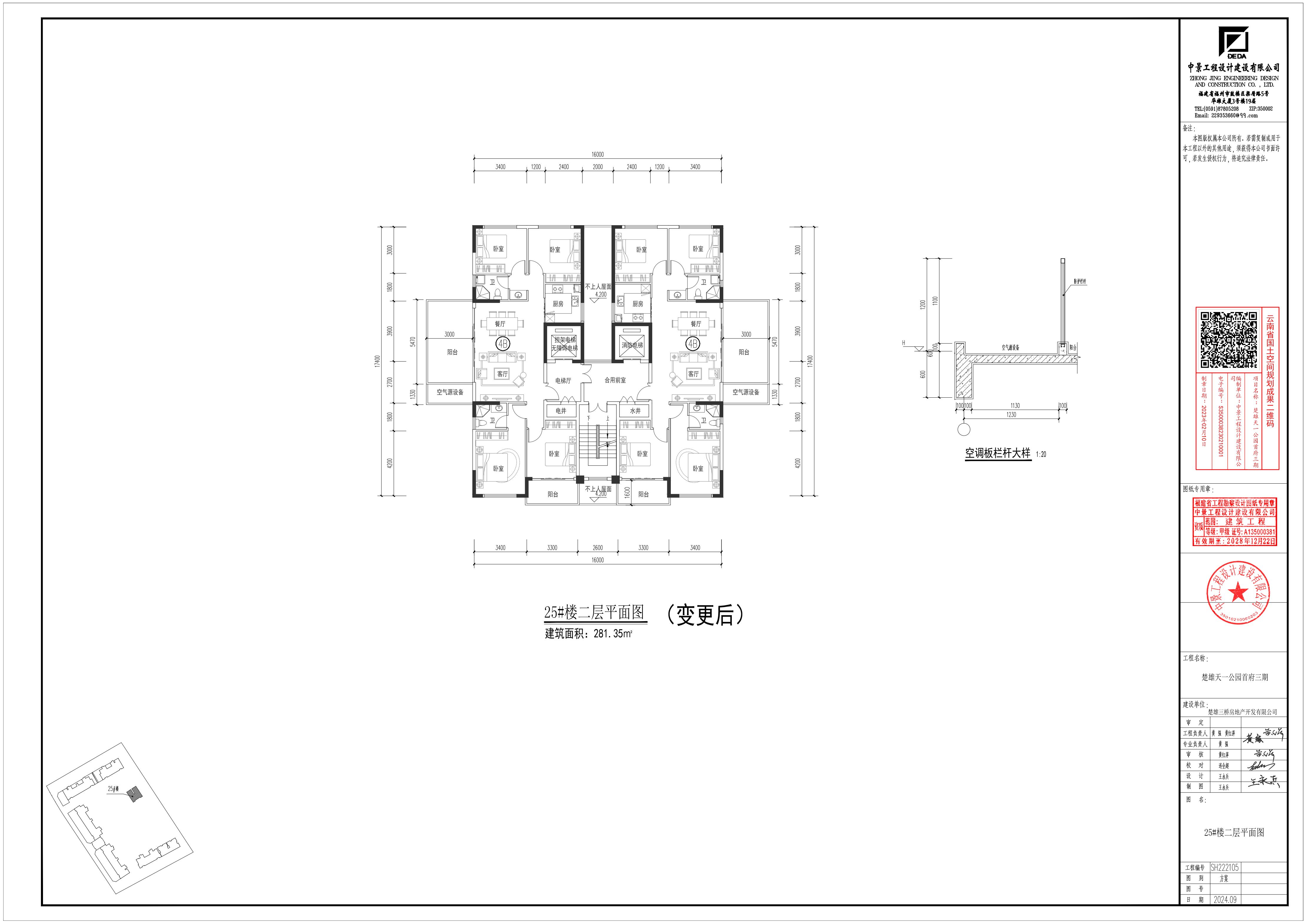
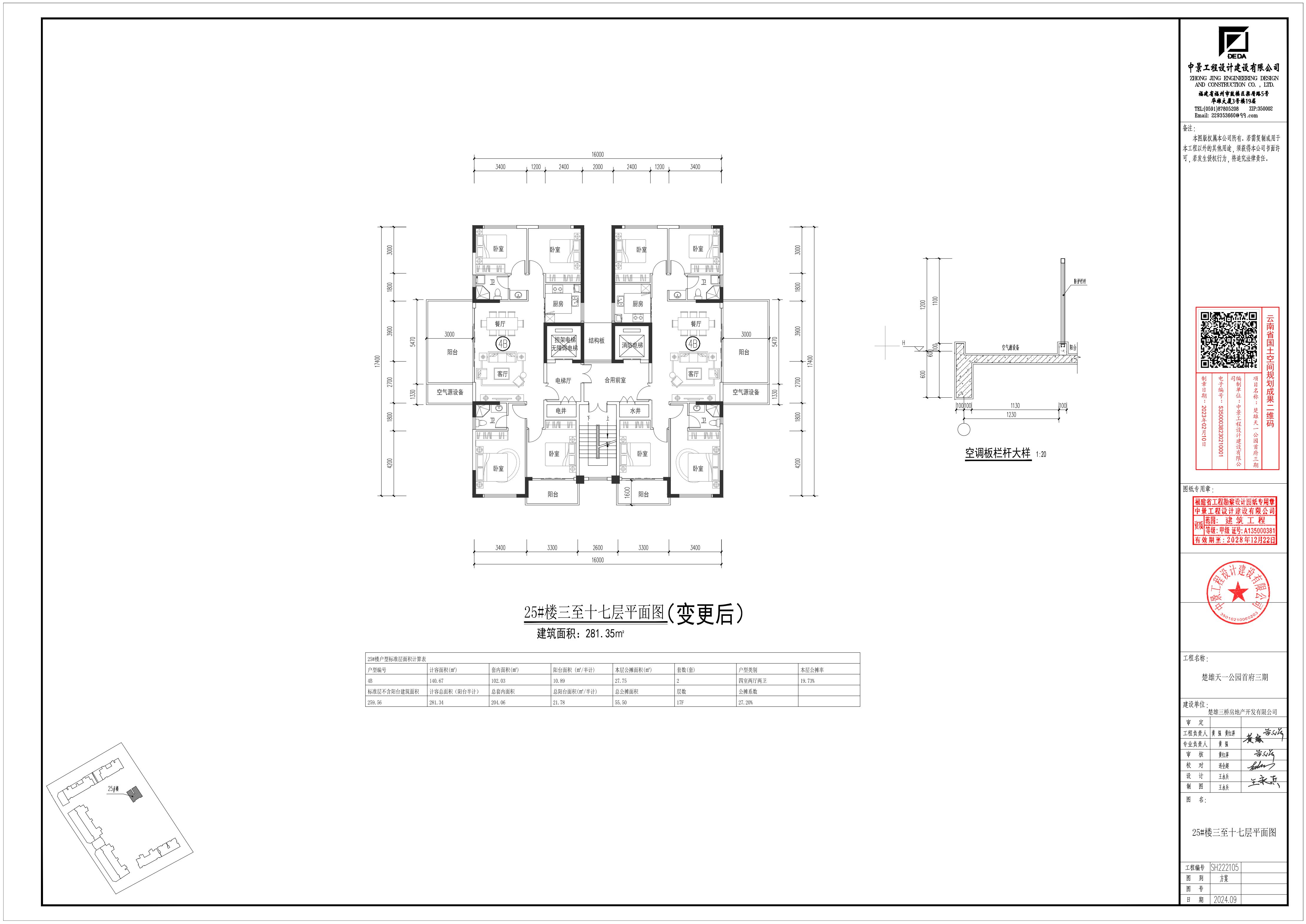
一、增加25#楼东、西阳台进深和开间,进深由1.8米调整为3.0米,开间由6.6米调整为5.47米。
二、减小25#楼南阳台进深,进深由1.8米调整为1.6米。
三、在25#楼东、西阳台的南侧增设设备平台,尺寸1.33米×3.0米。按照要求设备平台与建筑内部空间及阳台空间无出入口连通,计入计容建筑面积,计算容积率。
四、根据上述调整,25#楼指标变化情况如下:基底面积保持不变;一层建筑面积、计容建筑面积保持不变;二至十七层各层建筑面积由275.84㎡调整为281.35㎡,增加5.51㎡,计容建筑面积由275.84㎡调整为281.35㎡,增加5.51㎡;屋顶层建筑面积由33.28㎡调整为44.24㎡,增加10.96㎡;计容建筑面积由33.28㎡调整为44.24㎡,增加10.96㎡;总建筑面积由4738.42㎡调整为4837.54㎡,增加99.12㎡;计容建筑面积由4499.10㎡调整为4598.22㎡,增加99.12㎡。
五、楚雄天一公园首府三期修建性详细规划A区经济技术指标不变,B区经济技术指标改变,总体经济技术指标改变,具体如下:
楚雄天一公园首府三期修建性详细规划变更前后总体经济技术指标对比表
名称 |
变更前 总体经济技术指标 |
变更后 总体经济技术指标 |
变化值 |
|
规划用地面积(㎡) |
23580.00 |
23580.00 |
0 |
|
总建筑面积(㎡) |
103174.31 |
103273.43 |
﹢99.12 |
|
其中 |
地上建筑面积(㎡) |
82563.45 |
82662.57 |
﹢99.12 |
地下建筑面积(㎡) |
20610.86 |
20610.86 |
0 |
|
建筑基底面积 |
5870.46 |
5870.46 |
0 |
|
建筑密度(%) |
24.90 |
24.90 |
0 |
|
计容建筑面积(㎡) |
81944.69 |
82043.81 |
﹢99.12 |
|
容积率 |
3.475 |
3.479 |
﹢0.004 |
|
绿地面积(㎡) |
8253.00 |
8253.00 |
0 |
|
绿地率(%) |
35.00 |
35.00 |
0 |
|
户数(户) |
665 |
665 |
0 |
|
机动车停车位(个) |
776 |
776 |
0 |
|
其中 |
地上停车位(个) |
161 |
161 |
0 |
地下停车位(个) |
615 |
615 |
0 |
|
楚雄天一公园首府三期修建性详细规划变更前后B区经济技术指标对比表
名称 |
变更前 B区经济技术指标 |
变更后 B区经济技术指标 |
变化值 |
|
规划用地面积(公顷) |
10856.16 |
10856.16 |
0 |
|
总建筑面积(㎡) |
41694.91 |
41794.03 |
﹢99.12 |
|
其中 |
地上建筑面积(㎡) |
35699.41 |
35798.53 |
﹢99.12 |
地下建筑面积(㎡) |
5995.50 |
5995.50 |
0 |
|
建筑基底面积 |
2552.97 |
2552.97 |
0 |
|
建筑密度(%) |
23.52 |
23.52 |
0 |
|
计容建筑面积(㎡) |
35423.13 |
35522.25 |
﹢99.12 |
|
容积率 |
3.263 |
3.272 |
0.009 |
|
绿地面积(㎡) |
3799.65 |
3799.65 |
0 |
|
绿地率(%) |
35.00 |
35.00 |
0 |
|
户数(户) |
290 |
290 |
0 |
|
机动车停车位(个) |
337 |
337 |
0 |
|
其中 |
地上停车位(个) |
102 |
102 |
0 |
地下停车位(个) |
235 |
235 |
0 |
|
楚雄天一公园首府三期修建性详细规划变更后分区经济技术指标表
名称 |
总体经济技术指标 |
A区经济技术指标 |
B区经济技术指标 |
|
规划用地面积(公顷) |
23580.00 |
12723.84 |
10856.16 |
|
总建筑面积(㎡) |
103273.43 |
61479.40 |
41794.03 |
|
其中 |
地上建筑面积(㎡) |
82662.57 |
46864.04 |
35798.53 |
地下建筑面积(㎡) |
20610.86 |
14615.36 |
5995.50 |
|
建筑基底面积 |
5870.46 |
3317.49 |
2552.97 |
|
建筑密度(%) |
24.90 |
26.07 |
23.52 |
|
计容建筑面积(㎡) |
82043.81 |
46521.56 |
35522.25 |
|
容积率 |
3.479 |
3.656 |
3.272 |
|
绿地面积(㎡) |
8253.00 |
4453.35 |
3799.65 |
|
绿地率(%) |
35.00 |
35.00 |
35.00 |
|
户数(户) |
665 |
375 |
290 |
|
机动车停车位(个) |
776 |
439 |
337 |
|
其中 |
地上停车位(个) |
161 |
59 |
102 |
地下停车位(个) |
615 |
380 |
235 |
|
楚雄市自然资源局
2024年9月13日

















