楚雄市自然资源局对建设项目竣工规划
验收公示
楚市自资验收公示〔2024〕8号
项目名称:楚雄市思源实验学校新建教学楼项目
申报类别:建设工程竣工规划验收
申请人: 楚雄市思源实验学校
验收单位:楚雄市自然资源局
公示时间:2024年2月2日—2023年2月10日
公示地点:楚雄市自然资源局办公区一楼大厅;竣工现场。
公示网址:http://www.cxs.gov.cn/zfxxgk/bmgk.htm
组织公示单位:楚雄市自然资源局
项目地点:楚雄市鹿城镇阳光大道思源巷66号
意见反馈联系电话:3139022 3159991 传真:3159990
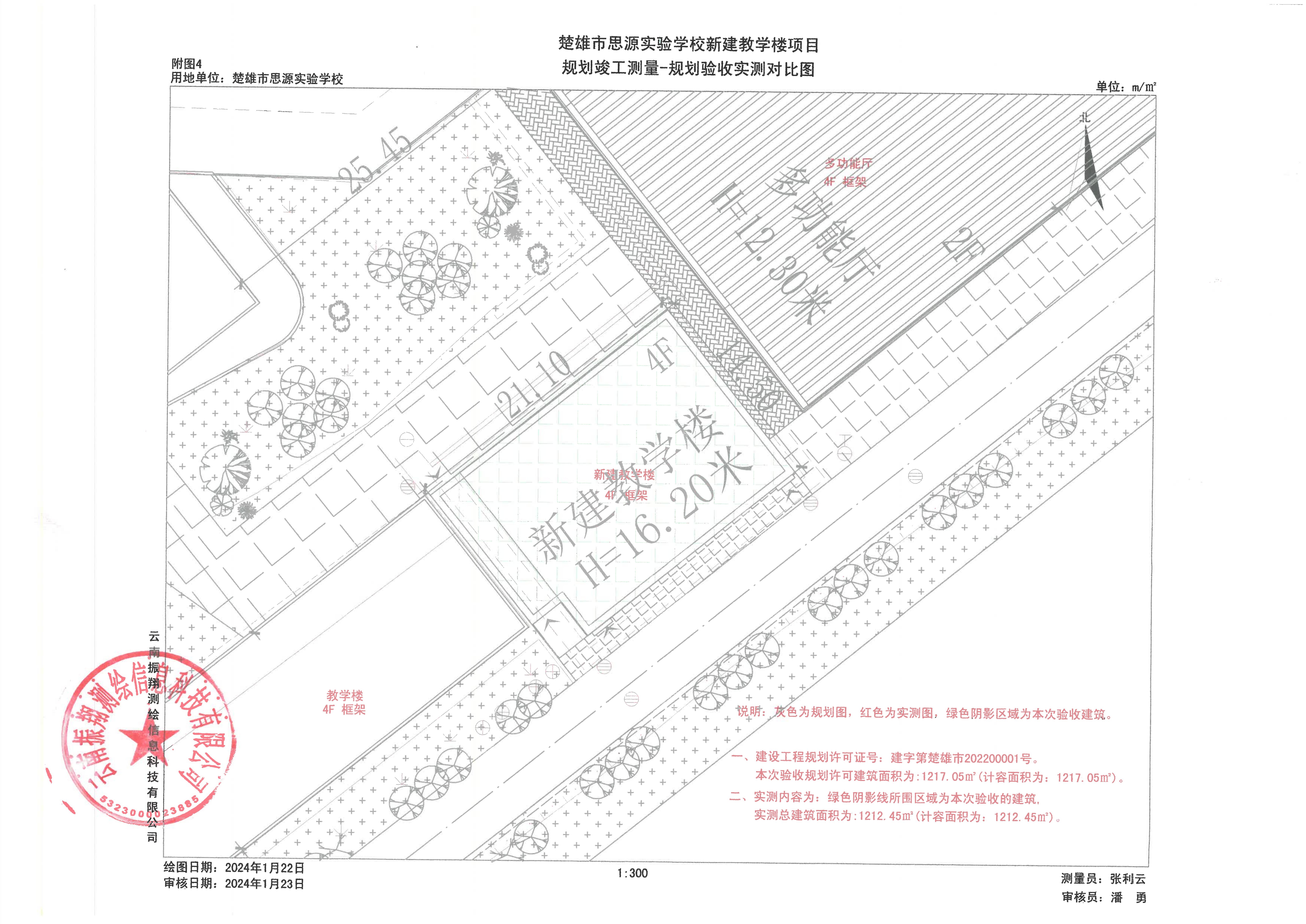
项目简介:楚雄市思源实验学校开发建设的“楚雄市思源实验学校新建教学楼项目”位于楚雄市鹿城镇阳光大道思源巷66号校园内,其修建性详细规划修改于2021年12月1日审定。楚雄市思源实验学校校园建设项目规划总用地面积48251.79㎡,建筑面积26366.41㎡,建筑基底面积9617.05㎡,计容建筑面积26307.98㎡,容积率0.55,建筑密度19.93%,绿地率34.31%,机动车停车位25个,办校规模59个班;其中新建教学楼项目规划建筑面积1217.05㎡,建筑基底面积298.15㎡。本次规划验收内容为楚雄市思源实验学校新建教学楼项目,2022年1月13日楚雄市思源实验学校根据审定的项目修建性详细规划,取得了楚雄市思源实验学校新建教学楼项目编号为建字第楚雄市202200001号的《建设工程规划许可证》,许可建筑面积1217.05㎡(其中地下一层为隔震层,按规范隔震层不纳入建筑面积计算),许可内容:新建教学楼1栋地上四层总建筑面积1217.05㎡,地下一层不计面积。
2024年1月15日楚雄市思源实验学校向我局申请对“楚雄市思源实验学校新建教学楼项目”新建的1栋教学楼按照单体建设工程给予规划验收,经测绘单位实测和现场比对审核,楚雄市思源实验学校新建教学楼项目新建的1栋教学楼实测建筑面积1212.45㎡(地下隔震层不纳入建筑面积计算)低于修规及规划许可4.60㎡,建筑基底面积301.25㎡,高于修规3.10㎡。楚雄市思源实验学校新建教学楼项目建设基本符合该项目修建性详细规划及《建设工程规划许可证》许可内容。根据《楚雄彝族自治州建设工程竣工规划验收管理办法》的有关规定,现对“楚雄市思源实验学校新建教学楼项目”项目建设内容进行规划验收前公示,如对项目建设内容规划验收有异议的请在公示期限内与我局联系。
附件内容:1.楚雄市思源实验学校新建教学楼项目验收位置示意图;
2.楚雄市思源实验学校新建教学楼项目修建性详细规划图;
3.楚雄市思源实验学校新建教学楼项目规划验收实测对比图。
楚雄市自然资源局
2024年2月2日


