楚雄市自然资源局对建设项目竣工规划
验收公示
楚市自资验收公示〔2024〕05号
项目名称:楚雄城乡农产品加工集采集配及冷链流通供应链建设项目二期(年产1.2万吨高原农产品精深加工建设项目)4#、5#、6#、7#建筑
申报类别:建设工程竣工规划验收
用地性质:批发市场用地
申 请 人:云南东合实业有限公司
验收单位:楚雄市自然资源局
公示时间:2024年1月26日—2024年2月4日
公示地点:楚雄市自然资源局办公区一楼大厅;竣工现场。
公示网址:http://www.cxs.gov.cn/zfxxgk/bmgk.htm
组织公示单位:楚雄市自然资源局
项目地点:楚雄市鹿城镇阳光大道延长线北侧
意见反馈联系电话:3139022 3159991 传真:3159990
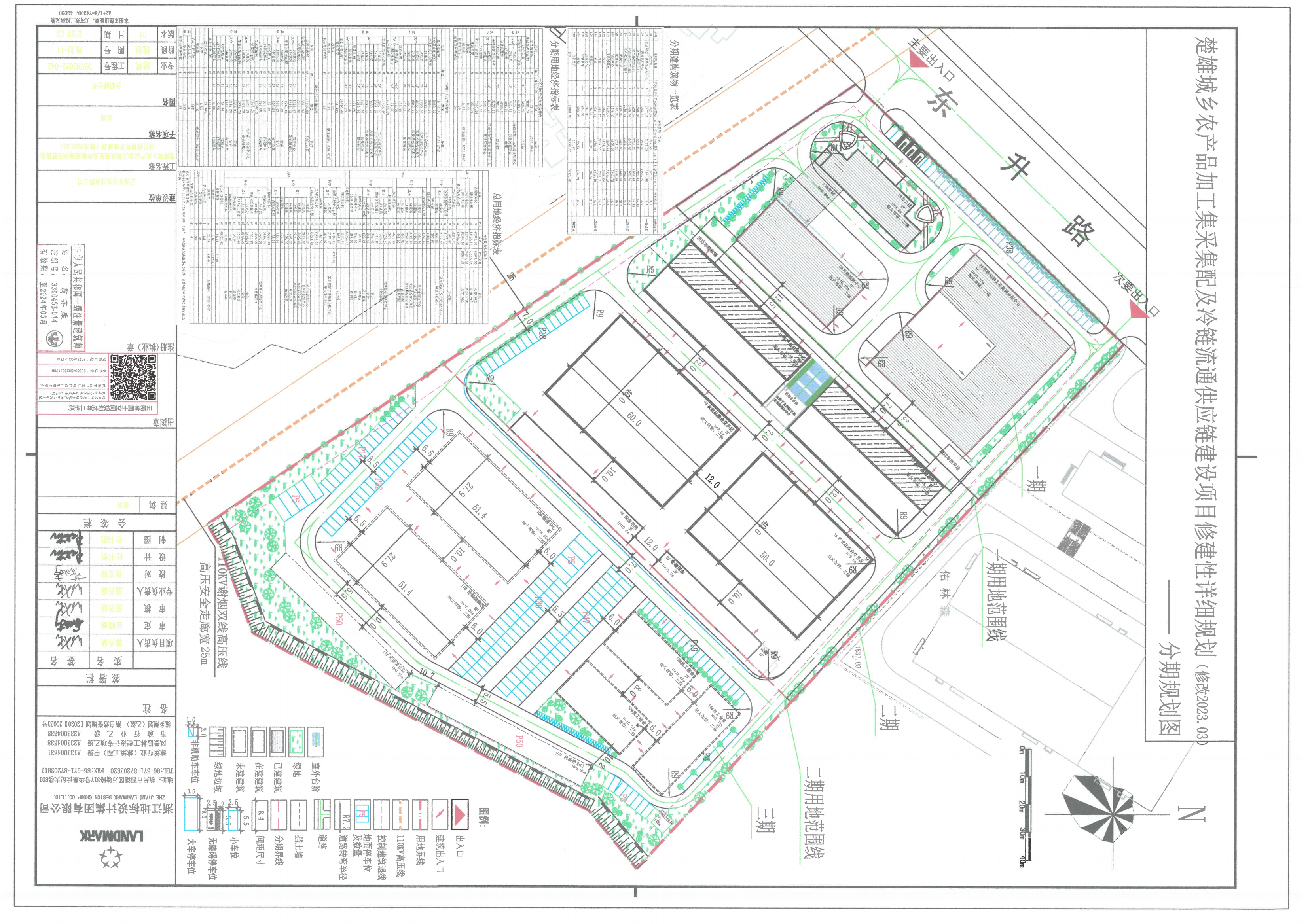
项目简介:云南东合实业有限公司开发建设的楚雄城乡农产品加工集采集配及冷链流通供应链建设项目二期(年产1.2万吨高原农产品精深加工建设项目)4#、5#、6#、7#建筑,位于楚雄市东南新城东升路东侧、佑琳生项目用地南侧,其修建性详细规划修改于2023年4月10日审定(楚雄城乡农产品加工集采集配及冷链流通供应链建设项目二期)。建设项目规划用地面积16446.81㎡,总建筑占地面积8468㎡,总建筑面积11786.09㎡,地上计容面积20569.60㎡,建筑密度51.49%,容积率1.25,绿地率3.81%(绿地面积626.81㎡),机动车停车位18个。云南东合实业有限公司于2023年4月26日取得字号为“建字第楚雄市202300020号”的《建设工程规划许可证》,其许可内容为:地上面积11614.4㎡,地下面积171.69㎡,计容面积20569.6㎡,总面积11786.09㎡。其中农产品批发中心用房2栋(4#、5#)地上二层,地上面积4315.2㎡,计容面积6830.4㎡(层高超8m),总面积4315.2㎡;农产品综合交易中心用房2栋(6#、7#)地上一层,地上面积4640㎡,计容面积9280㎡(层高超8m),总面积4640㎡;配套用房2栋(8#、9#)地上三层,地上面积2659.2㎡,计容面积2659.2㎡,总面积2659.2㎡;设备用房1栋地下一层,地下面积171.69㎡,总面积171.69㎡。2024年1月云南东合实业有限公司向我局申请对已实施完成的楚雄城乡农产品加工集采集配及冷链流通供应链建设项目二期(年产1.2万吨高原农产品精深加工建设项目)4#、5#、6#、7#建筑按单体建设工程给予规划验收。经测绘单位实测和现场比对审核,楚雄城乡农产品加工集采集配及冷链流通供应链建设项目二期(年产1.2万吨高原农产品精深加工建设项目)4#、5#、6#、7#建筑实测验收建筑总占地面积7507.01㎡(低于修规32.99㎡),建筑计容建筑面积17877.52㎡(低于修规及规划许可32.88㎡),建筑总建筑面积9110.44㎡(低于修规及规划许可16.45㎡)。楚雄城乡农产品加工集采集配及冷链流通供应链建设项目二期(年产1.2万吨高原农产品精深加工建设项目)4#、5#、6#、7#建筑建设基本符合该项目修建性详细规划及《建设工程规划许可证》许可内容。经我局研究为支撑企业健康发展,现拟对年产1.2万吨高原农产品精深加工建设项目(4#、5#、6#、7#建筑)按照单体建设工程进行规划验收,待项目建设单位按规划建设内容完成整体建设后,再将此次规划验收内容纳入项目整体经济指标进行核算。现根据有关规定和程序要求特进行规划验收前公示,如对楚雄城乡农产品加工集采集配及冷链流通供应链建设项目二期(年产1.2万吨高原农产品精深加工建设项目)4#、5#、6#、7#建筑建设内容规划验收有异议的请在公示期限内与我局联系。
附件内容:1.年产1.2万吨高原农产品精深加工建设项目(4#、5#、6#、7#建筑)验收位置示意图;
2.年产1.2万吨高原农产品精深加工建设项目修建性详细规划图;
3.年产1.2万吨高原农产品精深加工建设项目(4#、5#、6#、7#建筑)规划验收实测对比图。
楚雄市自然资源局
2024年1月26日

