楚雄市自然资源局对建设项目竣工规划
验收公示
楚市自资验收公示〔2024〕04号
项目名称:楚雄城乡农产品加工集采集配及冷链流通供应链建设项目(一期)
申报类别:建设工程竣工规划验收
用地性质:批发市场用地
申 请 人:云南东合实业有限公司
验收单位:楚雄市自然资源局
公示时间:2024年1月26日—2024年2月4日
公示地点:楚雄市自然资源局办公区一楼大厅;竣工现场。
公示网址:http://www.cxs.gov.cn/zfxxgk/bmgk.htm
组织公示单位:楚雄市自然资源局
项目地点:楚雄市鹿城镇阳光大道延长线北侧
意见反馈联系电话:3139022 3159991 传真:3159990
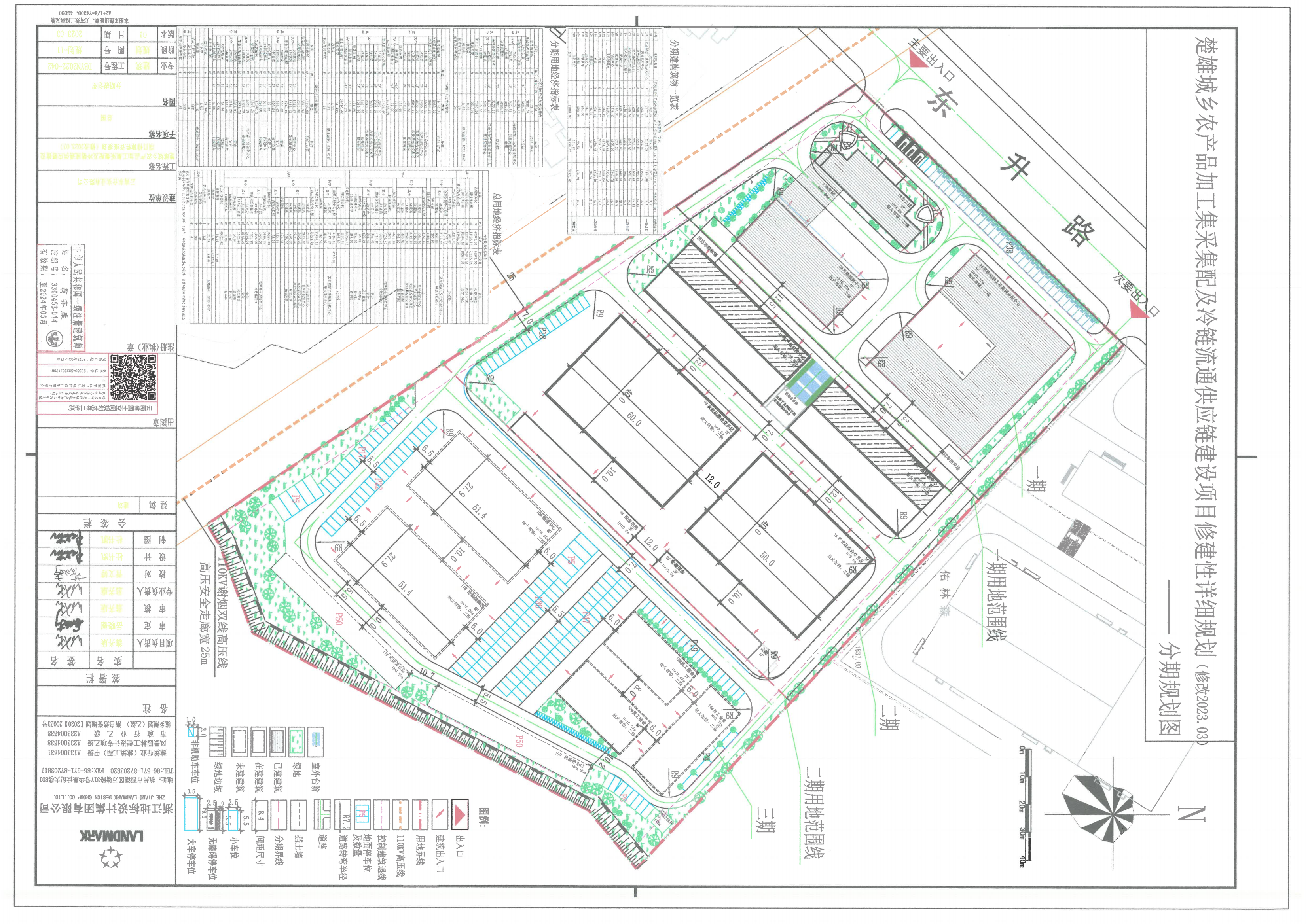
项目简介:云南东合实业有限公司开发建设的楚雄城乡农产品加工集采集配及冷链流通供应链建设项目(一期),位于楚雄市东南新城东升路东侧、佑琳生项目用地南侧,其修建性详细规划修改于2023年4月10日审定,该项目分一、二、三期实施建设。一期建设项目规划用地面积11126.16㎡,总建筑占地面积3981.98㎡,总建筑面积4263.13㎡,地上计容面积7393.26㎡,建筑密度35.79%,容积率0.66,绿地率9.67%(绿地面积1075.56㎡),机动车停车位39个,非机动车停车位23个。云南东合实业有限公司于2022年2月11日取得字号为“建字第楚雄市202200002号”的《建设工程规划许可证》,其许可内容为地上面积4263.13㎡,基底面积3879.47㎡,计容面积7247.76㎡。其中办公楼(1#)1栋二层,地上面积987.5㎡,基底面积987.5㎡,计容面积987.5㎡;果蔬初加工及集采分配中心(2#)1栋一层,地上面积2177.28㎡,基底面积2177.28㎡,计容面积4354.56㎡;果蔬保险中心(3#)1栋一层,地上面积952.98㎡,基底面积952.85㎡,计容面积1905.7㎡;雨棚(17#)1栋一层,地上面积145.5㎡,基底面积188.48㎡,计容面积0㎡。2024年1月云南东合实业有限公司向我局申请对已实施完成的楚雄城乡农产品加工集采集配及冷链流通供应链建设项目(一期)给予规划验收。经测绘单位实测和现场比对审核,楚雄城乡农产品加工集采集配及冷链流通供应链建设项目(一期)实测总占地建筑面积11126.16㎡,符合修建性详规;建筑占地面积4519.79㎡,高于规划许可面积640.32㎡;总建筑面积4766.95㎡,高于修规及规划许可面积503.82㎡(移交楚雄市城市管理局进行行政处罚);计容建筑面积8241.62㎡,高于修规面积848.36㎡,高于规划许可面积993.86㎡;建筑层数及外观符合修建性详细规划;机动车停车位40个,大于规划许可1个;绿地率为5.6%,低于修规4.05%;建筑密度40.62%,高于修规4.83%;容积率0.76,高于修规0.1;公厕86.41㎡,位置已更改在二期进行建设,且1#楼一二层均设有卫生间,满足使用功能;其余均按照修建性详细规划进行建设。楚雄城乡农产品加工集采集配及冷链流通供应链建设项目(一期)基本符合该项目修建性详细规划及《建设工程规划许可证》许可内容。经我局研究为支撑企业健康发展,现拟对楚雄城乡农产品加工集采集配及冷链流通供应链建设项目(一期)进行规划验收,根据有关规定和程序要求特进行规划验收前公示,如对楚雄城乡农产品加工集采集配及冷链流通供应链建设项目(一期)建设内容规划验收有异议的请在公示期限内与我局联系。
附件内容:
1.楚雄城乡农产品加工集采集配及冷链流通供应链建设项目(一期)验收位置示意图;
2.楚雄城乡农产品加工集采集配及冷链流通供应链建设项目(一期)修建性详细规划图;
3.楚雄城乡农产品加工集采集配及冷链流通供应链建设项目(一期)规划验收实测对比图。
楚雄市自然资源局
2024年1月26日


