楚雄市自然资源局关于建设项目竣工
规划验收公示
楚市自资验收公示〔2024〕03号
项目名称:楚雄家嘉缘商贸有限公司加工冷链商贸物流项目(一期)
申报类别:建设工程竣工规划验收
申请人:楚雄家嘉缘商贸有限公司
验收单位:楚雄市自然资源局
公示时间:2024年1月26日—2024年2月4日
公示地点:楚雄市自然资源局办公区一楼大厅;竣工现场。
公示网址:http://www.cxs.gov.cn/zfxxgk/bmgk.htm
组织公示单位:楚雄市自然资源局
项目地点:楚雄市东南新城富民庄甸工业区富民片区
意见反馈联系电话:3139022 3159991 传真:3159990
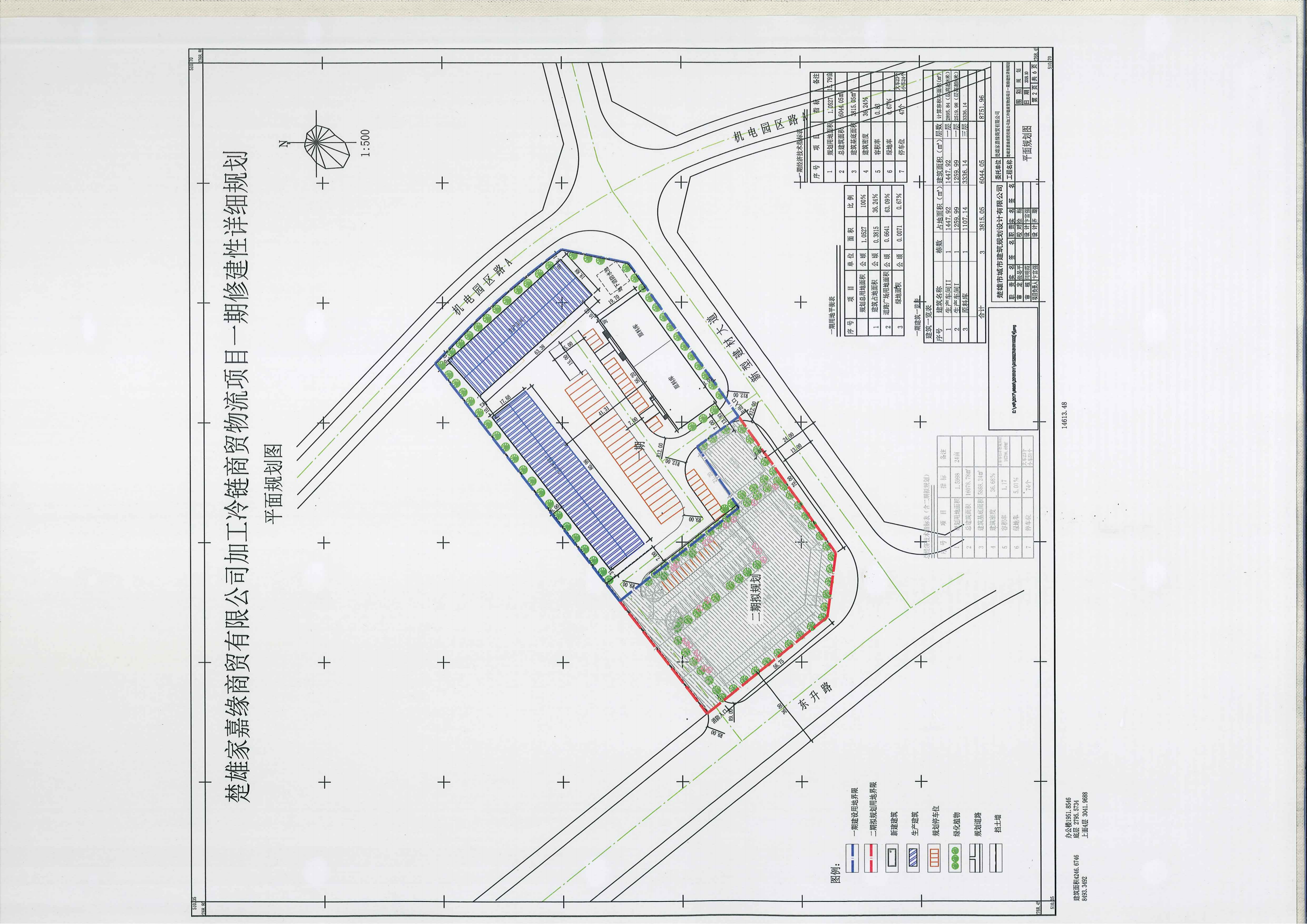
项目简介:楚雄家嘉缘商贸有限公司加工冷链商贸物流项目(一期)用地位于楚雄市东南新城富民庄甸工业区富民片区,其修建性详细规划于2018年10月12日审定实施,项目规划用地面积10527㎡ ,规划总建筑面积6044.05㎡,建筑基底面积3815.05㎡,规划建筑密度36.24%,容积率0.83,绿地率0.67%,停车位47个(大车23个,小车24个)。2018年10月楚雄家嘉缘商贸有限公司根据审定的项目修建性详细规划,取得了楚雄家嘉缘商贸有限公司加工冷链商贸物流项目(一期)编号为建字第楚雄市201800191号的《建设工程规划许可证》,许可建筑面积8694.78㎡(其中生产车间层高超8m,面积复算),许可内容为:新建原料库1栋地上三层总建筑面积3336.14㎡,新建生产车间2栋地上一层总建筑面积5358.64㎡。2024年1月楚雄家嘉缘商贸有限公司向我局申请对已实施完成的楚雄家嘉缘商贸有限公司加工冷链商贸物流项目(一期)新建的2栋生产车间按照单体建设工程给予规划验收。经测绘单位实测和现场比对审核,楚雄家嘉缘商贸有限公司加工冷链商贸物流项目(一期)2栋生产车间实测总建筑面积5353.94㎡(层高超过8米建筑面积按二层测算),占地面积2676.97㎡(其中生产车间一1259.6㎡,生产车间二1417.37㎡),总建筑面积2676.97,低于规划许可2.35㎡ ,计容面积5353.94㎡低于规划许可4.7㎡。楚雄家嘉缘商贸有限公司加工冷链商贸物流项目(一期)2栋生产车间建设基本符合该项目修建性详细规划及《建设工程规划许可证》许可内容。经我局研究为支撑企业健康发展,现拟对楚雄家嘉缘商贸有限公司加工冷链商贸物流项目(一期)新建的2栋生产车间按照单体建设工程进行规划验收,待项目建设单位按规划建设内容完成整体建设后,再将此次规划验收内容纳入项目整体经济指标进行核算。根据有关规定和程序要求特进行规划验收前公示,如对楚雄家嘉缘商贸有限公司加工冷链商贸物流项目(一期)新建的2栋生产车间建设内容规划验收有异议的请在公示期限内与我局联系。
附件内容:1.楚雄家嘉缘商贸有限公司加工冷链商贸物流项目(一期)的新建生产车间验收位置示意图;
2.楚雄家嘉缘商贸有限公司加工冷链商贸物流项目(一期)修建性详细规划图;
3.楚雄家嘉缘商贸有限公司加工冷链商贸物流项目(一期)的生产车间规划验收实测对比图。
楚雄市自然资源局
2024年1月26日

