楚雄市自然资源局对建设项目竣工规划
验收公示
楚市自资验收公示〔2023〕023号
项目名称:楚雄州烟草公司物资中心仓库建设项目
申报类别:建设工程竣工规划验收
用地性质:其他商业服务业用地
申 请 人:云南省烟草公司楚雄州公司
核实单位:楚雄市自然资源局
公示时间:2023年11月17日—2023年11月27日(节假日除外)
公示地点:楚雄市自然资源局办公区一楼大厅;竣工现场。
公示网址:http://www.cxs.gov.cn/zfxxgk/bmgk.htm
组织公示单位:楚雄市自然资源局
项目地点:楚雄市东南新城顺通公司南侧
意见反馈联系电话:3139022 3159991 传真:3159990
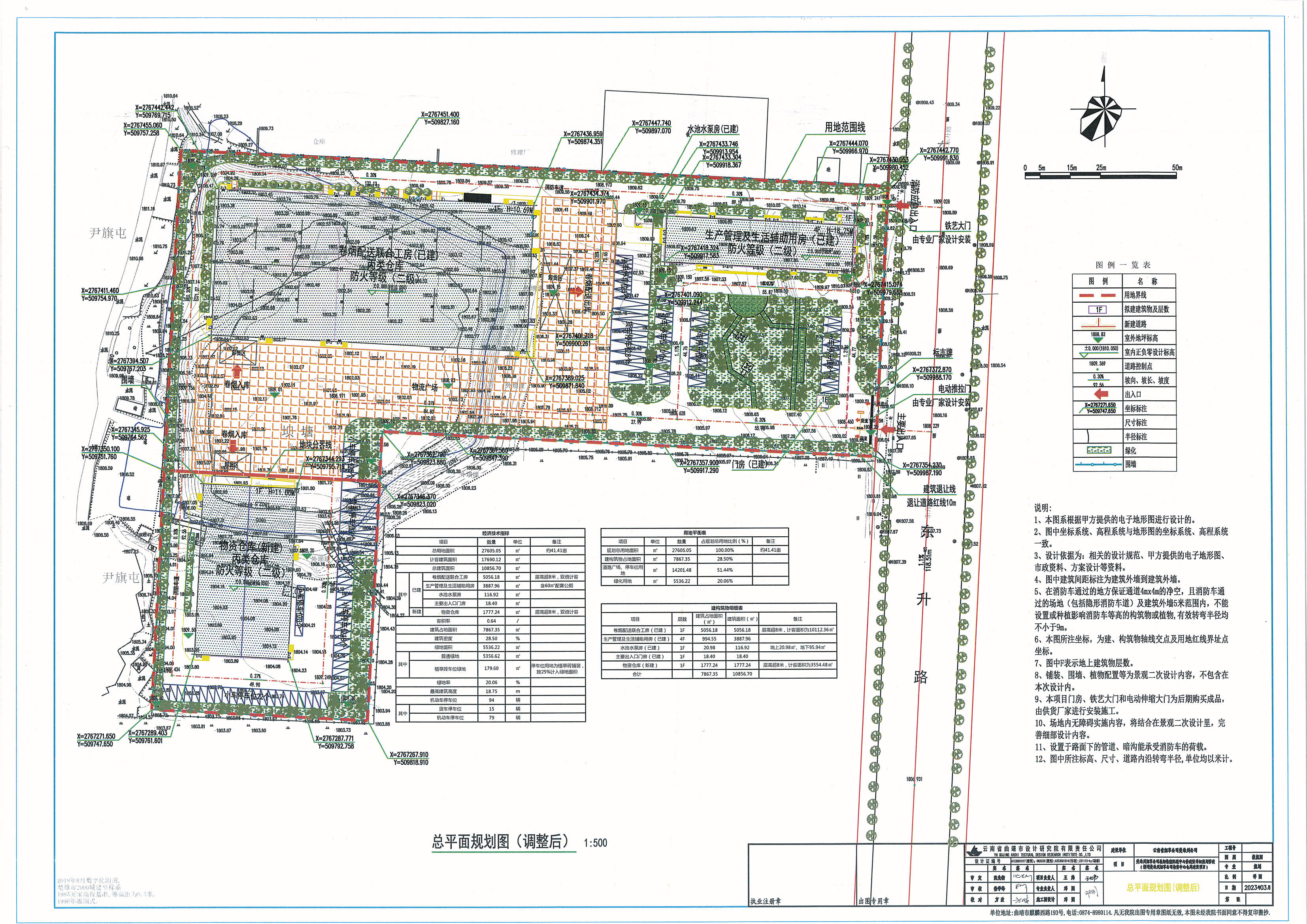
项目简介:楚雄州烟草公司卷烟物流配送中心(新增楚雄州烟草公司物资中心仓库建设项目)位于楚雄市东南新城顺通公司南侧,其修建性详细规划于2022年7月12日审定,分两期实施建设,其中楚雄州烟草公司卷烟物流配送中心(即一期)于2022年1月25日通过规划验收。楚雄州烟草公司卷烟物流配送中心(新增楚雄州烟草公司物资中心仓库建设项目)总规划用地面积27605.05㎡,总建筑面积10856.70㎡,计容建筑面积17690.12㎡,容积率0.64,建筑密度28.50%,绿地率20.06%,总机动车位94个(其中货车停车位15个,机动车停车位79个)。本次验收内容为烟草公司物资中心仓库建设项目(即二期),其规划用地面积5606.05㎡,总建筑面积1777.24㎡,计容建筑面积3554.48㎡,容积率0.63,建筑密度31.70%,绿地率15.78%,总机动车位50个(其中货车停车位7个,机动车停车位43个)。2022年8月12日项目建设单位根据审定的项目修建性详细规划办理了该二期编号为建字第楚雄市202200012号的《建设工程规划许可证》,规划许可总建筑面积为1785.92㎡(计容面积:3571.84㎡),许可内容为:物资仓库1栋地上一层(其建筑层高超8米,计容面积复算)。2023年11月云南省烟草公司楚雄州公司向我局申请对已竣工的楚雄州烟草公司物资中心仓库项目建设内容进行规划验收,经测绘单位实测和现场比对审核,该项目实测用地面积5606.05㎡,总建筑面积1773.03㎡(低于修规4.21㎡,低于规划许可12.89㎡),计容建筑面积3546.06㎡(低于修规8.42㎡,低于规划许可25.78㎡);建筑密度31.63%(低于修规0.07%),容积率0.63(符合修建性详细规划),绿地率18.12%(高于修规2.34%);实测总机动车位55个(其中货车停车位7个,机动车停车位48个)。现该项目一期及二期均已实施完毕,经审核楚雄州烟草公司卷烟物流配送中心(新增楚雄州烟草公司物资中心仓库建设项目)实测用地面积27605.05㎡,总建筑面积10852.49㎡(低于修规4.21㎡,低于规划许可34.73㎡),计容建筑面积17681.70㎡(低于修规8.42㎡),地上建筑面积10756.55㎡(低于修规4.21㎡,低于规划许可34.73㎡),地下建筑面积95.94㎡(符合修建性详细规划及规划许可);建筑密度28.48%(低于修规0.02%),容积率0.64(符合修建性详细规划),绿地率20.04%(低于修规绿化面积4.31㎡,但满足设计条件≥20%要求);实测总机动车位94个(其中货车停车位15个,机动车停车位79个,满足规划要求)。根据《楚雄彝族自治州建设工程竣工规划验收管理办法》的规定现对楚雄州烟草公司物资中心仓库项目建设内容进行公示,如对项目建设内容规划验收有异议的请在公示期限内与我局联系。
附件内容:
1.楚雄州烟草公司物资中心仓库建设项目验收位置示意图;
2.楚雄州烟草公司卷烟物流配送中心修建性详细规划修改(新增楚雄州烟草公司物资中心仓库建设项目)总平面规划图;
3.楚雄州烟草公司物资中心仓库建设项目规划验收实测对比图。
楚雄市自然资源局
2023年11月17日


