审批公示
楚市自然资源公示〔2023〕054号
项目名称:云南电网有限责任公司楚雄供电局东南新城生产基地修建性详细规划(修改)——楚雄供电局调度控制中心业务用房及生产业务辅助用房项目
申报类别:规划审批
申报单位:云南电网有限责任公司楚雄供电局
规划审批单位:楚雄市自然资源局
公示类别:批前公示
公示时间:2023年8月29日至2023年9月4日
公示地点:楚雄市自然资源局办公区一楼大厅、施工现场
公示网址:http://www.cxs.gov.cn/zfxxgk/bmgk.htm
公示组织单位:楚雄市自然资源局
意见反馈联系电话:3159106 3159991 传真:3159990
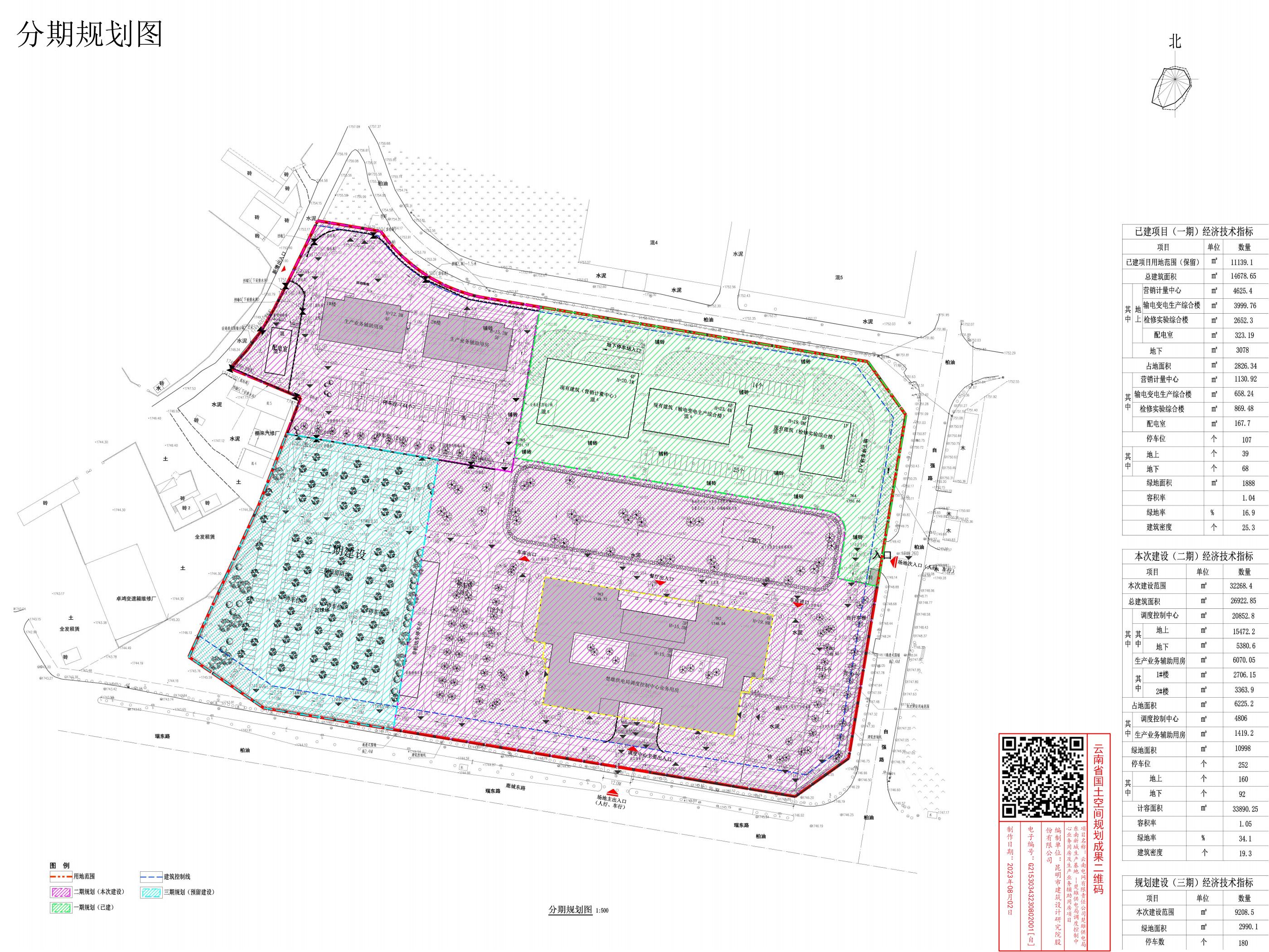
项目简介:云南电网有限责任公司楚雄供电局东南新城生产基地项目用地位于楚雄市东南新城北侧,地块东临瑞平路,南临瑞东路,西临现状空地,北临麦安路,规划用地面积78.92亩。该项目修建性详细规划于2011年9月审定实施,2013年5月进行修改,现云南电网有限责任公司楚雄供电局提出,将已建部分作为一期,且保持不变的前提下,对剩余未建设部分进行规划修改,修改部分分为二、三两期实施,修改前后各项经济技术指标均满足相关规范、技术标准及设计条件要求。
云南电网有限责任公司楚雄供电局东南新城生产基地修建性详细规划
修改前后经济技术指标对比及分期指标表
名称 |
变更前 总体经济 技术指标 |
变更后 总体经济 技术指标 |
变化值 |
一期经济 技术指标 |
二期经济 技术指标 |
二期经济 技术指标 |
|
规划用地面积(㎡) |
52616.00 |
52616.00 |
0 |
11139.10 |
32268.40 |
9208.50 |
|
总建筑面积(㎡) |
44412.80 |
41601.50 |
﹣2811.30 |
14678.65 |
26922.85 |
0 |
|
计容建筑面积(㎡) |
44039.60 |
45490.90 |
﹢1451.30 |
11600.65 |
33890.25 |
0 |
|
建筑密度(%) |
22.83 |
17.20 |
﹣5.63 |
25.37 |
19.29 |
0 |
|
容积率 |
0.84 |
0.86 |
0.02 |
1.04 |
1.05 |
0 |
|
绿地率(%) |
35.94 |
30.20 |
﹣5.74 |
16.95 |
34.08 |
32.47 |
|
机动车停车位(个) |
445 |
539 |
﹢94 |
107 |
252 |
180 |
|
其中 |
地上(个) |
237 |
379 |
﹢142 |
39 |
160 |
180 |
地下(个) |
208 |
160 |
﹣48 |
68 |
92 |
0 |
|
(注:一期为实测面积,故修改前总指标与原规划指标存在一定差异)
楚雄市自然资源局
2023年8月29日





