楚雄市自然资源局建设项目行政
审批公示
楚市自然资源公示〔2023〕045号
项目名称:中农联—楚雄国际农产品交易中心一期修建性详细规划修改(变更)
申报类别:规划审批
申报单位:中农联(楚雄)建设开发有限公司
规划审批单位:楚雄市自然资源局
公示类别:批前公示
公示时间:2023年7月11日至2023年7月17日
公示地点:楚雄市自然资源局办公区一楼大厅、施工现场、售楼部
公示网址:http://www.cxs.gov.cn/zfxxgk/bmgk.htm
公示组织单位:楚雄市自然资源局
意见反馈联系电话:3159106 3159991 传真:3159990
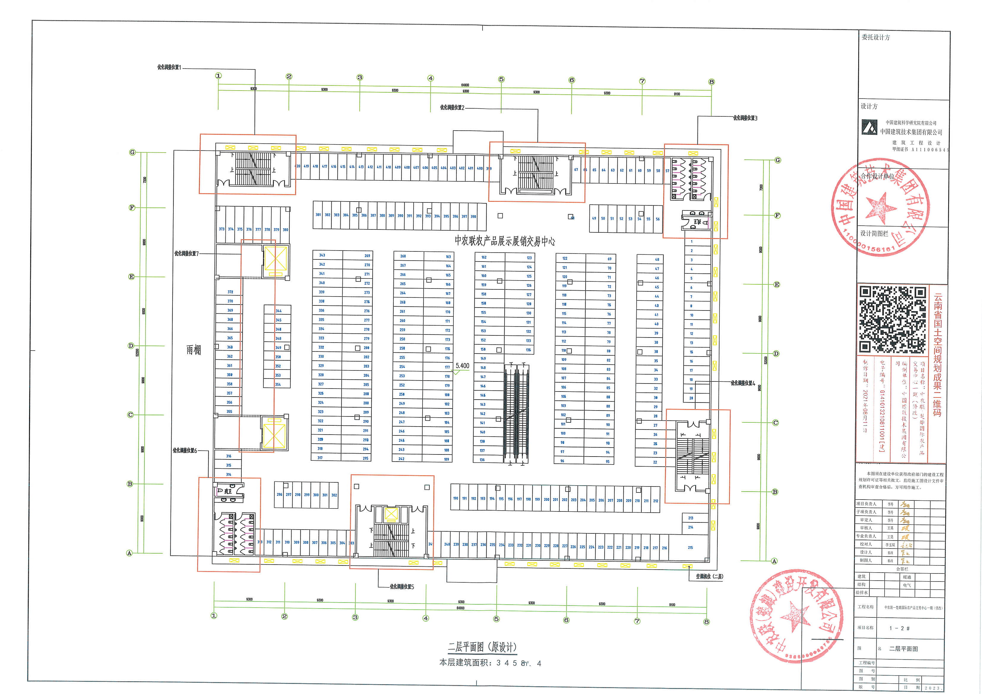
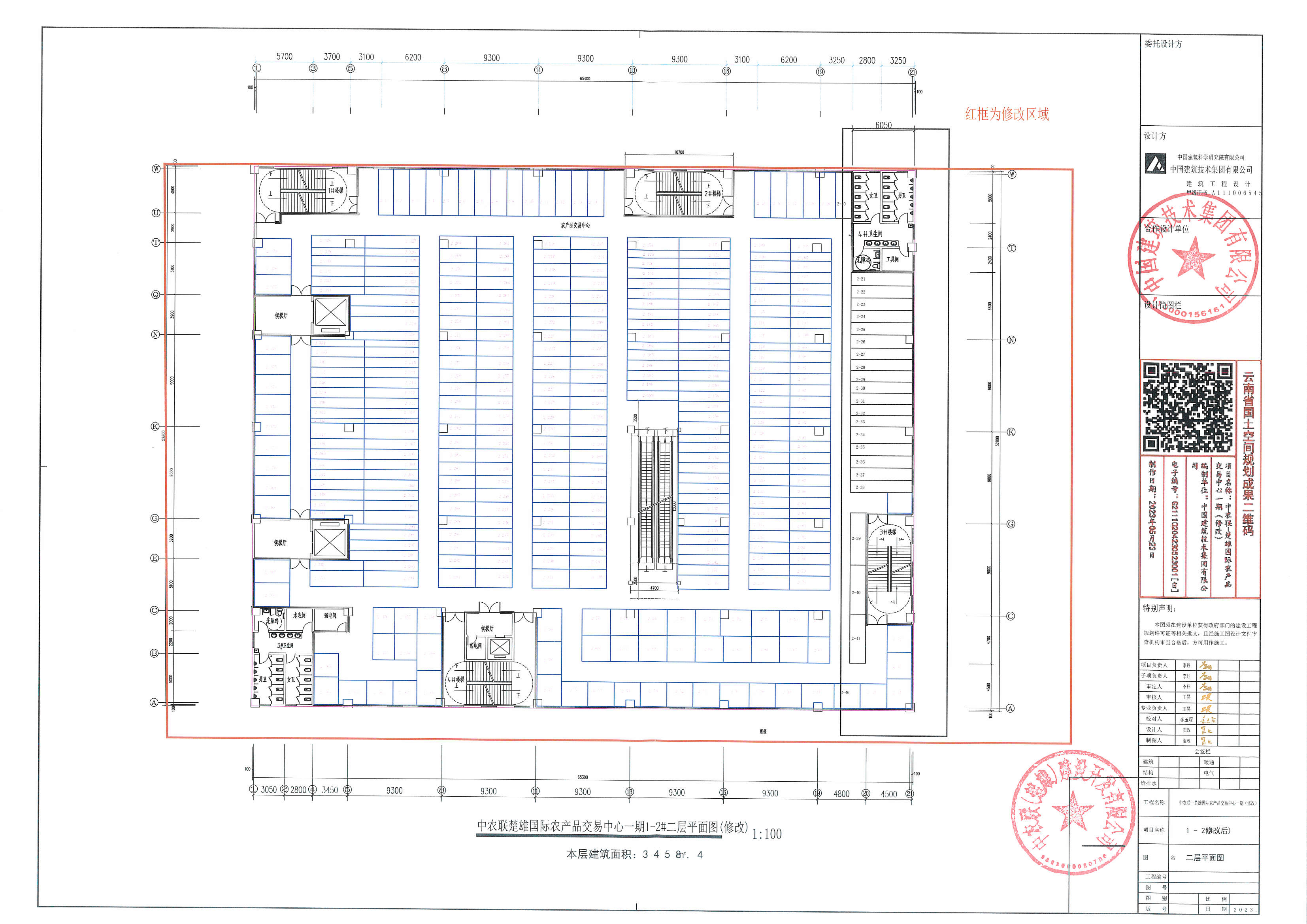
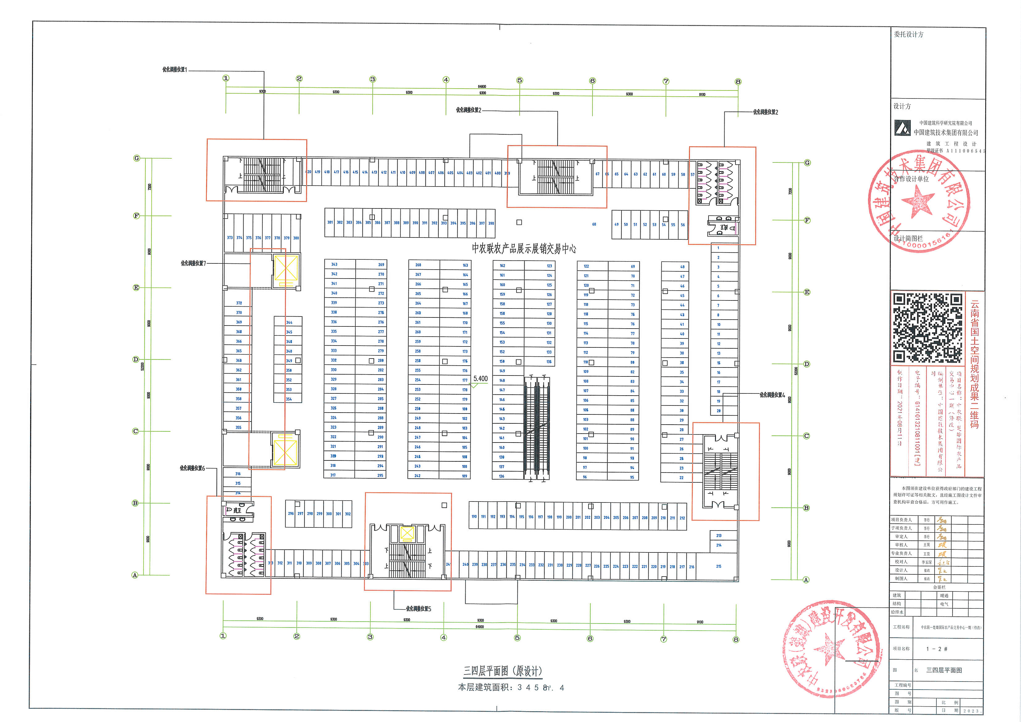
项目简介:中农联—楚雄国际农产品交易中心一期项目用地位于楚雄市紫溪镇前进社区,地块南、西临G320国道,北临G56杭瑞高速,东临拟出让用地,规划用地面积170亩。该项目修建性详细规划于2018年10月审定,2021年6月进行规划修改。现项目单位中农联(楚雄)建设开发有限公司提出在保持规划布局、功能性质、交通组织、竖向设计、工程管线、经济技术指标等均不变的前提下,对1-2#建筑布局进行调整。
主要调整内容:一是按照施工图调整建筑内部强电间、水表间、排烟机房、楼梯间、卫生间等的布局;二是调整建筑内虚拟商铺的布局,将原规划的5524个调整为1212个,实体商铺66间保持不变,1-2#商铺总数由5590个调整为1278个。调整前后建筑轮廓、面积均保持不变。
征求意见情况:根据建设单位提交的网签备案以及征求意见情况,1-2#共计销售14间商铺,其中实体商铺1间(1-66),虚拟商铺13个(1-88、1-113、1-138、3-55、3-56、3-57、3-61、3-69、3-837、3-878、3-1344、3-1523、3-1537),已征得11个业主的同意,比例为78.57%。已销售的商铺此次不进行调整(包括编号、位置、面积等)。
楚雄市自然资源局
2023年7月11日









