审批公示
楚市自然资源公示〔2023〕041号
项目名称:楚雄新鸥鹏教育小镇3#地块A区修建性详细规划(变更)
申报类别:规划审批
申报单位:云南楚鸥教育产业有限责任公司
规划审批单位:楚雄市自然资源局
公示类别:批前公示
公示时间:2023年6月29日至2023年7月5日
公示地点:楚雄市自然资源局办公区一楼大厅、施工现场、售楼部
公示网址:http://www.cxs.gov.cn/zfxxgk/bmgk.htm
公示组织单位:楚雄市自然资源局
意见反馈联系电话:3159106 3159991 传真:3159990
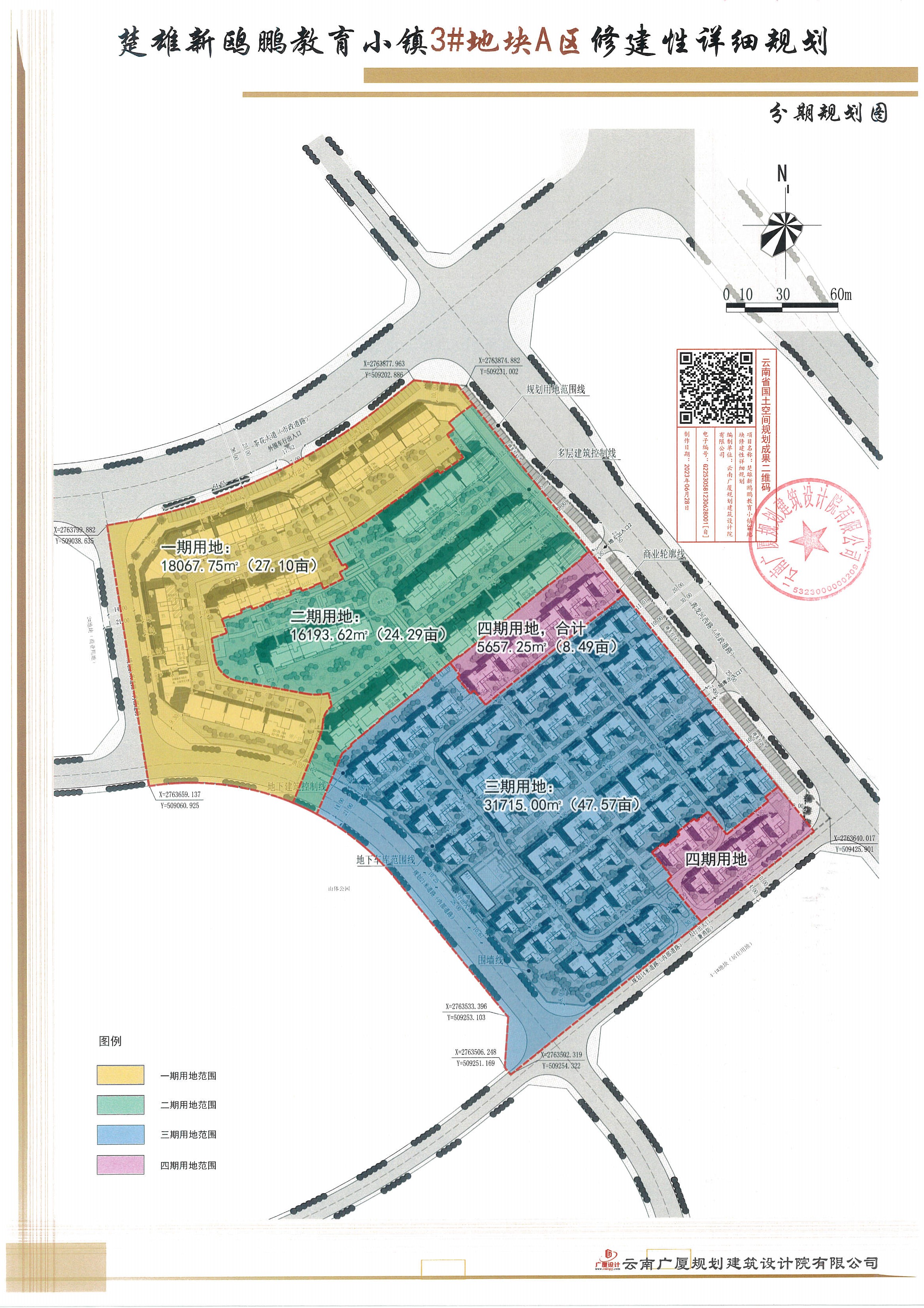
项目简介:楚雄新鸥鹏教育小镇3#地块A区项目用地位于楚雄市科创城片区南部,地块东临青龙河西路,南临规划东西向14米道路,西临规划南北向21米道路,北临茶花大道,规划用地面积107.45亩,该项目修建性详细规划于2020年5月审定实施。现云南楚鸥教育产业有限责任公司提出在保持该项目整体布局不变,各项经济技术指标均保持不变的前提下,对该项目进行分期实施,共分为四期:一期为1#—5#共5栋楼;二期为6#—10#共5栋楼;三期为13#—37#、39#—42#共29栋楼;四期为11#、12#、38#、43#共4栋楼。地下室分期范围与地上一致。
楚雄新鸥鹏教育小镇3#地块A区修建性详细规划
分期经济技术指标表
名称 |
总体 经济技术指标 |
一期 经济技术指标 |
二期 经济技术指标 |
三期 经济技术指标 |
四期 经济技术指标 |
|
规划用地面积(㎡) |
71633.62 |
18067.75 |
16193.62 |
31715.00 |
5657.25 |
|
总建筑面积(㎡) |
124463.73 |
34254.27 |
42403.09 |
40025.12 |
7781.25 |
|
计容建筑面积(㎡) |
86564.65 |
32058.72 |
33487.29 |
17550.53 |
2558.11 |
|
建筑密度(%) |
28.74 |
27.20 |
32.18 |
27.21 |
32.38 |
|
容积率 |
1.21 |
1.77 |
2.07 |
0.55 |
0.63 |
|
绿地率(%) |
31.17 |
18.70 |
42.11 |
30.85 |
41.47 |
|
机动车停车位(个) |
517 |
71 |
168 |
197 |
81 |
|
其中 |
地面机动车停车位 |
51 |
51 |
0 |
0 |
0 |
地下机动车停车位 |
466 |
20 |
168 |
197 |
81 |
|
户数 |
549 |
230 |
214 |
87 |
18 |
|
楚雄市自然资源局
2023年6月29日










