审批公示
楚市自然资源公示〔2023〕035号
项目名称:永兴·彝海大成地面机动车停车位调整
申报类别:规划审批
申报单位:楚雄永兴彝海大成二期A区业主委员会
楚雄永兴彝海房地产开发有限责任公司
规划审批单位:楚雄市自然资源局
公示类别:批前公示
公示时间:2023年6月1日至2023年6月7日
公示地点:楚雄市自然资源局办公区一楼大厅、施工现场
公示网址:http://www.cxs.gov.cn/zfxxgk/bmgk.htm
公示组织单位:楚雄市自然资源局
意见反馈联系电话:3159106 3159991 传真:3159990
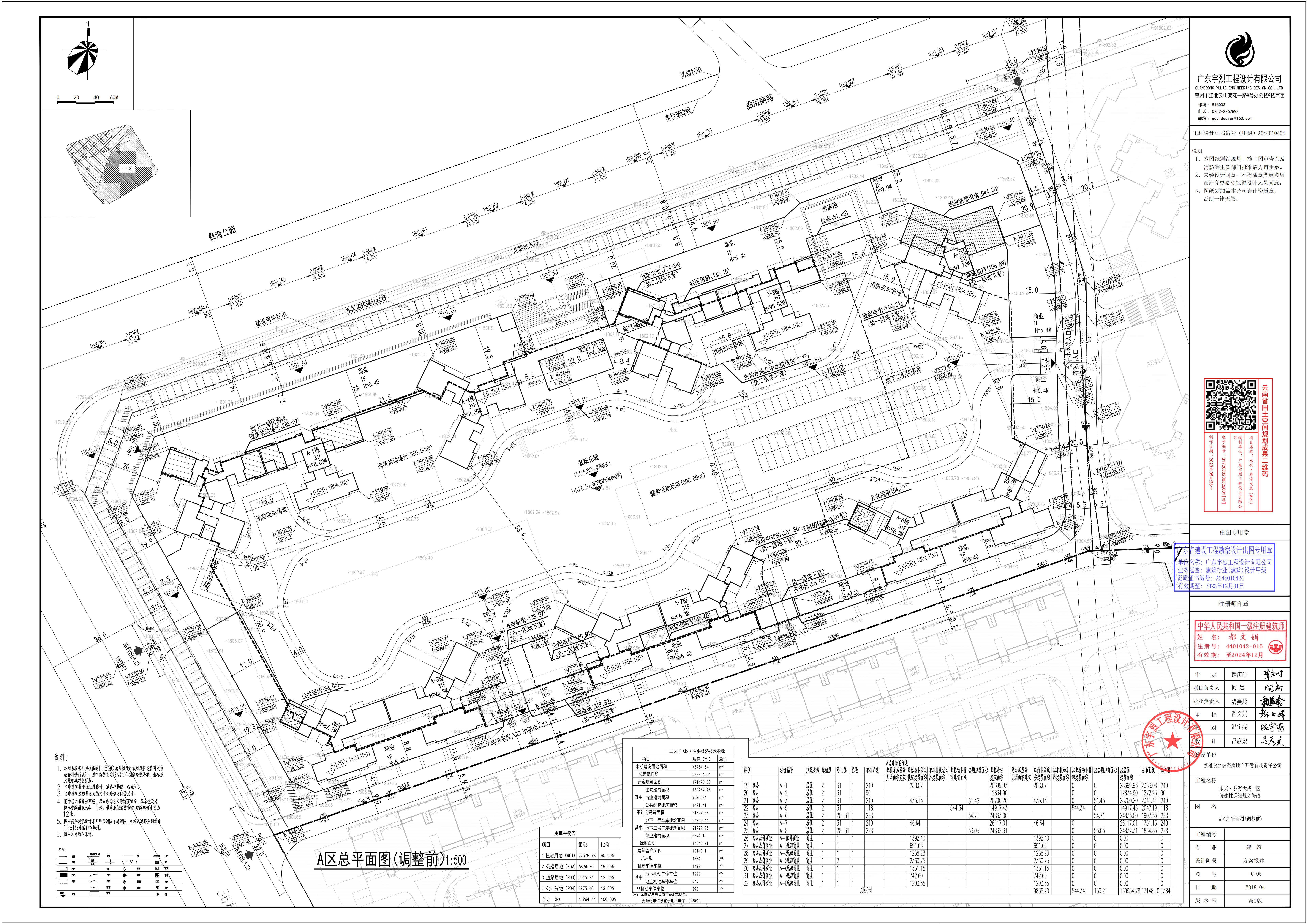
项目简介:永兴·彝海大成项目用地位于楚雄市东南新城中部,地块东临彝海东路,南临民生路,西临富强路,北临彝海南路。
调整内容:二期A区(观海项目)位于该项目用地西北部,二期A区(观海项目)内部原规划(已验收)99个地面机动车停车位,现楚雄永兴彝海大成二期A区业主委员会提出申请:将该99个地面机动车停车位铲除,在二期A区(观海项目)南侧与永兴·彝海大成南部低层住宅区中间的内部东西向道路上(北侧)补设65个地上机动车停车位,放弃不足的34个机动车停车位。
铲除99个地面机动车停车位,补划65个地面机动车停车位,放弃34个机动车停车位的方案经楚雄永兴彝海大成二期A区业主委员会组织二期A区业主按照相关法律法规投票通过。
楚雄市自然资源局
2023年6月1日























