雄市自然资源局建设项目行政
审批公示
楚市自然资源公示〔2022〕040号
项目名称:楚雄市鹿城镇彝海社区东乾苑(倪家嘴、黄土坡、迤干、外干四个居民小组)建设项目修建性详细规划(变更)
申报类别:规划审批
申报单位:楚雄市鹿城镇彝海社区
规划审批单位:楚雄市自然资源局
公示类别:批前公示
公示时间:2022年11月15日至2022年11月21日
公示地点:楚雄市自然资源局办公区一楼大厅、施工现场
公示网址:http://www.cxs.gov.cn/zfxxgk/bmgk.htm
公示组织单位:楚雄市自然资源局
意见反馈联系电话:3159991 3139022 传真:31529990
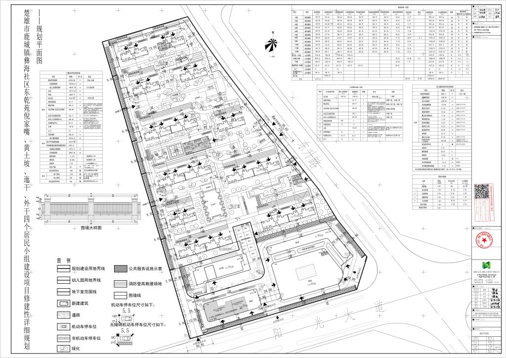
项目简介:楚雄市鹿城镇彝海社区东乾苑(倪家嘴、黄土坡、迤干、外干四个居民小组)建设项目用地位于楚雄市东南新城东部,地块东临东升路,南临阳光大道,西、北临现状空地,规划用地面积88.06亩。该项目修建性详细规划于2021年12月审定实施,现楚雄市鹿城镇彝海社区提出,在保持该项目总体布局、竖向规划、综合管线等均不变的,所有经济技术指标均满足相关规范要求的前提下,对该项目修建性详细规划进行如下变更:
18#楼一层层高由3米调整为3.9米,增加0.9米;二至四层层高由3米调整为3.6米,增加0.6米;建筑总高度由13.5米(含1.5米高女儿墙)调整为16.2米(含1.5米高女儿墙),增加2.7米。
变更后,由于18#建筑高度增加,项目日照分析发生变化,但仍满足相关规范要求、技术标准。其余经济技术指标均保持不变。
楚雄市自然资源局
2022年11月15日




