楚雄市自然资源局关于建设项目竣工
规划验收公示
楚市自资验收公示〔2022〕018号
项目名称:楚雄市鹿城镇初级中学新建综合教学用房工程项目
申报类别:建设工程竣工规划验收
申请人:楚雄市鹿城镇初级中学
验收单位:楚雄市自然资源局
公示时间:2022年11月11日—2022年11月17日
公示地点:楚雄市自然资源局办公区一楼大厅;竣工现场。
公示网址:http://www.cxs.gov.cn/zfxxgk/bmgk.htm
组织公示单位:楚雄市自然资源局
项目地点:楚雄市鹿城镇大东村委会黄土坡村民小组
意见反馈联系电话:3139022 3159991 传真:3159990
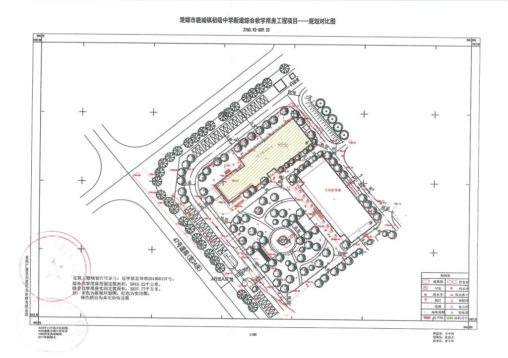
项目简介:楚雄市鹿城中学项目用地位于楚雄市鹿城镇黄土坡村,规划总用地面积127452.3㎡,其修建性详细规划于2013年8月27日审定。楚雄市鹿城中学项目规划总建筑面积90469.6㎡,其中地上建筑面积89860.79㎡(为计容建筑面积),半地下建筑面积608.81㎡(为不计容建筑面积),建筑密度20.35%,容积率0.74,绿地率30.29%。本次验收内容为鹿城中学初中部公共教学用房,规划建筑面积为5710.24㎡。2018年7月楚雄市鹿城镇初级中学根据审定的项目修建性详细规划,对楚雄市鹿城中学初中部公共教学用房(即新建综合教学用房工程项目)进行报建,并按程序办理了编号为建字第楚雄市201800137号的《建设工程规划许可证》,许可总建筑面积5843.22㎡,其许可内容为:新建综合教学用房一栋地上五层局部四层。2022年10月楚雄市鹿城镇初级中学向我局申请对该新建综合教学用房进行规划验收,经测绘单位实测和现场比对,新建综合教学用房实测总建筑面积5837.77㎡(高于修规面积127.53㎡,低于规划许可面积5.45㎡),其建设规模符合该项目《建设工程规划许可证》许可内容,现拟对楚雄市鹿城镇初级中学新建综合教学用房工程项目按照单体建筑工程进行规划验收。根据《楚雄彝族自治州建设工程竣工规划验收管理办法》的有关规定特进行公示,如对楚雄市鹿城镇初级中学新建综合教学用房工程项目建设内容规划验收有异议的请在公示期限内与我局联系。
附件内容:1.楚雄市鹿城镇初级中学新建综合教学用房工程项目验收位置示意图;
2.楚雄市鹿城中学项目修建性详细规划图;
3.楚雄市鹿城镇初级中学新建综合教学用房工程项目规划验收实测对比图。
楚雄市自然资源局
2022年11月10日


