楚雄市自然资源局关于建设项目竣工规划
核实验收公示
楚市自资验收公示〔2022〕013号
项目名称:万景平山院子
申报类别:建设工程竣工规划核实验收
申请人: 楚雄市万腾房地产有限公司
核实单位:楚雄市自然资源局
公示时间:2022年8月19日—2022年8月25日
公示地点:楚雄市自然资源局办公区一楼大厅;竣工现场。
公示网址:http://www.cxs.gov.cn/zfxxgk/bmgk.htm
组织公示单位:楚雄市自然资源局
项目地点:楚雄市鹿城镇福塔社区上平山、楚风苑住宅小区西北侧
意见反馈联系电话:3139022 3159991 传真:3159990
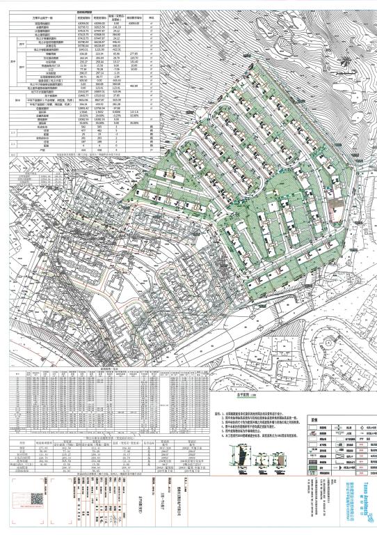
项目简介:楚雄市万腾房地产有限公司开发建设的万景平山院子建设项目位于楚雄市鹿城镇福塔社区上平山、楚风苑住宅小区西北侧,规划总用地面积43093㎡,其修建性详细规划于2020年7月1日审定,变更设计方案于2022年1月12日审定实施,调整内容含第20栋公共服务配套用房层数由地上二层调整至三层,总建筑面积调低141.16㎡等,调整后规划总建筑面积92615.56㎡,其中地上建筑面积67808.55㎡,地下及半地下建筑面积24807.01㎡,地上计容建筑面积67447.87㎡,地上不计容建筑面积360.68㎡,地下不计容建筑面积24807.01㎡;建筑密度29.69%,容积率1.5652,绿地率35%,机动车停车位505个,非机动车位203个。2020年7月22日项目建设单位根据审定的项目修建性详细规划取得万景平山院子建设项目《建设工程规划许可证》,编号为建字第楚雄市202000070号,建筑面积92756.26㎡(其中地上面积67423.39㎡,地下及半地下面积25332.87㎡),许可内容为:住宅两栋地上6层,住宅七栋地上7层,大门及门卫一栋地上1层,住宅七栋地上7层半地下1层,住宅十二栋地上6层半地下1层,公共配套用房一栋地上2层半地下1层,负一层地下室一座,负二层地下室一座。
楚雄市万腾房地产有限公司向我局申请对万景平山院子建设项目进行规划核实验收,经测绘单位实测和现场比对,该项目实测用地面积43093㎡,总建筑面积92517.34㎡,其中地上计容建筑面积67353.58㎡,地上不计容建筑面积360.19㎡,地上建筑面积67713.77㎡,地下及半地下建筑面积24803.57㎡,不计容建筑面积25163.76㎡;建筑密度28.67%,容积率1.563,绿地率37.53%,机动车停车位503个,总停车位数量低于修规指标2个。该项目地下室及半地下停车位中存在16个停车位尺寸不足2.5×5.5米,宽度在2.45~2.48米之间,但满足《车库建筑设计规范》JGJ100-2015中第4.3.3条及第4.3.4条,关于小型车垂直停车位最小尺寸要求;此外存在6个地下室停车位因人防门遮挡,停车受限;半地下停车位中有2个停车位受到电缆桥架出入口的遮挡,停车位最窄处为2.31~2.36米;针对因人防门受限停车位,建设单位承诺后期不进行租售,针对因桥架受限的停车位,建设单位承诺后期租售时明确告知业主。针对停车位个数不足2个的问题,建设单位于二期进行补足。根据《楚雄彝族自治州建设工程竣工规划验收管理办法》的有关规定特进行公示,如对万景平山院子建设项目规划核实验收有异议的请在公示期限内与我局联系。
附件内容:1.万景平山院子建设项目验收位置示意图;
2.万景平山院子建设项目修建性详细规划图;
3.万景平山院子建设项目规划验收实测对比图。
楚雄市自然资源局
2022年8月19日
