楚雄市自然资源局建设项目行政
审批公示
楚市自然资源公示〔2022〕023号
项目名称:中农联—楚雄国际农产品交易中心一期修建性详细规划(修改)分期变更
申报类别:规划审批
申报单位:中农联(楚雄)建设开发有限公司
规划审批单位:楚雄市自然资源局
公示类别:批前公示
公示时间:2022年7月11日至2022年7月17日
公示地点:楚雄市自然资源局办公区一楼大厅、施工现场、售楼部
公示网址:http://www.cxs.gov.cn/zfxxgk/bmgk.htm
公示组织单位:楚雄市自然资源局
意见反馈联系电话:3159991 3139022 传真:3159990
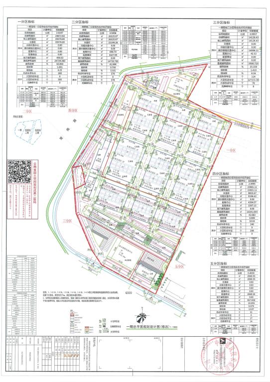
项目简介:中农联—楚雄国际农产品交易中心一期项目用地位于楚雄市紫溪镇前进社区,地块南、西临G320国道,北临G56杭瑞高速,东临拟出让用地,规划用地面积170亩。该项目修建性详细规划于2018年10月审定,2021年6月进行规划修改。现项目单位提出在保持规划布局、功能性质、交通组织、竖向设计、工程管线、经济技术指标等不变的前提下,将中农联—楚雄国际农产品交易中心一期项目分为五区实施。
一区为:1-5-1A#、1-5-1B#、1-5-1C#、1-5-2A#、1-5-2B#、1-5-2C#、1-5-3A#、1-5-3B#、1-5-3C#、1-6-1A#、1-6-1C#、1-6-2A#、1-6-2C#、1-6-3A#、1-6-3C#共15栋建筑(该区已于2021年1月通过规划核实验收)。
二区为:1-3-1#、1-3-2#、1-3-3#、1-4-1A#、1-4-1B#、1-4-2A#、1-4-2B#、1-4-3A#、1-4-3B#、1-4-4#、1-5-4#共11栋建筑。
三区为:1-2#、1-9#共2栋建筑。
四区为:1-6-1B#、1-6-2B#、1-6-3B#、1-6-4#、1-7#、1-8#共6栋建筑。
五区为:1-1#共1栋建筑。
中农联—楚雄国际农产品交易中心一期修建性详细规划修改
分区主要经济技术指标表
名称 |
总指标 |
一区指标 |
二区指标 |
三区指标 |
四区指标 |
五区指标 |
|
规划用地面积(㎡) |
113333.00 |
39346.58 |
35095.53 |
9956.83 |
23994.79 |
4939.24 |
|
总建筑面积(㎡) |
107166.99 |
39872.93 |
26325.97 |
14126.43 |
23981.11 |
2860.55 |
|
计容建筑面积(㎡) |
106670.06 |
39376.00 |
26325.97 |
14126.43 |
23981.11 |
2860.55 |
|
容积率 |
0.94 |
1.00 |
0.75 |
1.42 |
1.0 |
0.58 |
|
建筑密度(%) |
47.80 |
62.85 |
42.00 |
35.16 |
42.68 |
19.40 |
|
绿地率(%) |
10.00 |
6.25 |
13.81 |
8.26 |
10.53 |
13.97 |
|
停车位(个) |
1067 |
300 |
376 |
114 |
246 |
31 |
|
其中 |
大车(个) |
30 |
0 |
0 |
30 |
0 |
0 |
小车(个) |
1037 |
300 |
376 |
84 |
246 |
31 |
|
楚雄市自然资源局
2022年7月11日

