楚雄市自然资源局建设项目行政
审批公示
楚市自然资源公示〔2022〕015号
项目名称:云南省彝医医院(楚雄州中医医院)西院区改扩建修建性详细规划(修改2021.12)
申报类别:规划审批
申报单位:楚雄州中医医院
规划审批单位:楚雄市自然资源局
公示类别:批前公示
公示时间:2022年5月19日至2022年5月25日
公示地点:楚雄市自然资源局办公区一楼大厅、施工现场
公示网址:http://www.cxs.gov.cn/zfxxgk/bmgk.htm
公示组织单位:楚雄市自然资源局
意见反馈联系电话:3159991 3139022 传真:3159990
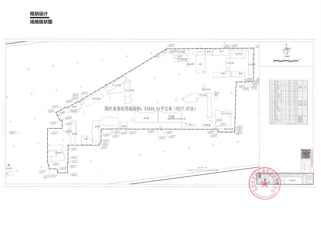
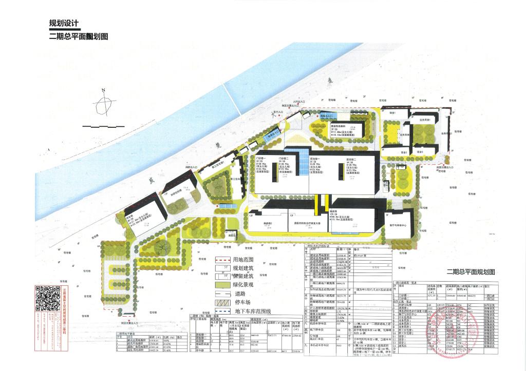
项目简介:云南省彝医医院(楚雄州中医医院)西院区改扩建项目用地位于楚雄市老城区北部,地块东、西临现状住宅楼,南临现状住宅楼和鹿城西路,北临威楚大道,规划用地面积77.87亩。《云南省彝医医院(楚雄州中医医院)西院区改扩建修建性详细规划(修改2021.12)设计方案》已于2022年3月22日通过楚雄州国土空间规划委员会办公室组织的专家技术评审。通过规划拟对原楚雄州中医医院分三期分步完成改扩建,现予以公示。
审批概况: 规划用地面积:51918.41㎡
一期总建筑面积:89814.98㎡(计容建筑面积77406.25㎡)
一期新建建筑面积23000.69㎡(其中新建地上建筑面积13505.96㎡,新建地下建筑面积9494.73㎡)
一期保留建筑面积66814.29㎡(其中保留地上建筑面积63900.29㎡,保留地下建筑面积2914.00㎡)
一期建筑密度:27.49%
一期容积率:1.49
一期绿地率:30.38%
一期机动车停车位:163个(其中地面停车位63个,地下停车位100个)
二期总建筑面积:134570.48㎡(计容建筑面积120279.78㎡)
二期新建建筑面积81404.75㎡(其中新建地上建筑面积56522.09㎡,新建地下建筑面积24882.66㎡)
二期保留建筑面积53165.73㎡(其中保留地上建筑面积50251.73㎡,保留地下建筑面积2914.00㎡)
二期建筑密度:33.62%
二期容积率:2.32
二期绿地率:20.46%
二期机动车停车位:737个(其中地面停车位47个,地下停车位500个,停车楼停车位190个)
三期总建筑面积:163560.00㎡(计容建筑面积114181.81㎡)
三期新建建筑面积20626.56㎡(其中新建地上建筑面积8539.76㎡,新建地下建筑面积12086.80㎡)
三期保留建筑面积142933.44㎡(其中保留地上建筑面积105642.05㎡,保留地下建筑面积37291.39㎡)
三期建筑密度:31.54%
三期容积率:2.20
三期绿地率:30.23%
三期机动车停车位:1267个(其中地面停车位82个,地下停车位995个,停车楼停车位190个)
楚雄市自然资源局
2022年5月19日







