楚雄市自然资源局关于建设项目竣工规划
核实验收公示
楚市自资验收公示〔2022〕007号
项目名称:楚雄市汽车博览小镇一期A区
申报类别:建设工程竣工规划核实验收
申请人: 楚雄伟光汇通汽车博览产业发展有限公司
核实单位:楚雄市自然资源局
公示时间:2022年3月11日—2022年3月17日
公示地点:楚雄市自然资源局办公区一楼大厅;竣工现场
公示网址:http://www.cxs.gov.cn/zfxxgk/bmgk.htm
组织公示单位:楚雄市自然资源局
项目地点:楚雄市鹿城镇河前社区、元双路公路西侧
意见反馈联系电话:3139022 3159991 传真:3159990
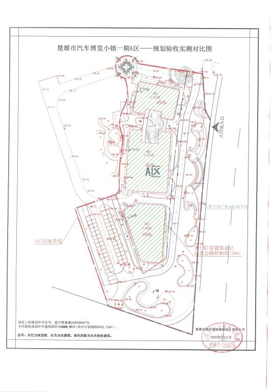
项目简介:楚雄市汽车博览小镇一期位于楚雄市城西组团鹿城镇河前社区,东临元双公路,南临储备用地,西临河前小河,北临在建尚亿·紫溪壹号。楚雄市汽车博览小镇一期A区修建性详细规划于2020年12月16日审定,楚雄市汽车博览小镇一期建设项目修建性详细规划(包含A区、B区、C区、D区、E区、F区六个区)于2021年6月24日审定实施,用地性质为商业用地,总用地面积88503㎡,规划总建筑面积65910.62㎡,其中地上建筑面积60598.38㎡,半地下建筑面积4517.49㎡,地下建筑面积794.75㎡;建筑密度31.09%,容积率0.85,绿地率15.63%,机动车停车位606个(其中地面停车位528个,地下停车位78个)。项目共分为A区、B区、C区、D区、E区、F区六个区建设,此次对A区进行规划核实验收。
楚雄市汽车博览小镇一期A区建设项目总用地面积10176.02㎡,规划总建筑面积3365.97㎡(其中地上建筑面积3365.97㎡,复算面积2689.77㎡,计容建筑面积6055.74㎡),建筑密度23.19%,容积率0.60,绿地率11.67%,机动车停车位34个(均为地面停车位)。2020年12月30日建设方根据审定的修建性详细规划办理了楚雄市汽车博览小镇一期A区建设项目《建设工程规划许可证》,编号为建字第楚雄市202000097号,许可建筑面积3365.97㎡(计容面积:6055.75㎡),许可内容为:展示中心及汽车记忆博物馆一栋地上两层,汽车之家一栋地上两层。
2022年2月楚雄伟光汇通汽车博览产业发展有限公司向我局申请对已竣工的楚雄市汽车博览小镇一期A区建设项目进行规划核实验收,经测绘单位实测和现场比对,该项目实测用地面积10176.02㎡,总建筑面积3354.14㎡(其中地上建筑面积3354.14㎡,复算面积2672.71㎡,计容建筑面积6026.85㎡),建筑密度23.19%,容积率0.592,绿地率16.08%,机动车停车位34个(均为地面停车位)。位于项目西侧的消防通道由于与还未开工建设的D区相连,为方便施工相邻位置的消防通道未实施建设完成,但现状的临时消防通道宽度满足消防车通行的需求,同时建设方也承诺在2023年5月1日前严格按照规划要求建设该消防通道。该项目经济技术指标、建筑定位、场地竖向等均满足规划许可内容及审定规划要求。
根据《楚雄彝族自治州建设工程竣工规划验收管理办法》的有关规定特进行公示,如对楚雄市汽车博览小镇一期A区规划核实验收有异议的请在公示期限内与我局联系。
附件内容:
1.楚雄市汽车博览小镇一期A区验收位置示意图;
2.楚雄市汽车博览小镇一期A区修建性详细规划图;
3.楚雄市汽车博览小镇一期A区规划验收实测对比图。
楚雄市自然资源局
2022年3月11日

