楚雄市自然资源局建设项目行政
审批公示
楚市自然资源公示〔2022〕005号
项目名称:中农联—楚雄国际农产品交易中心一期修建性详细规划(修改)变更
申报类别:规划审批
申报单位:中农联(楚雄)建设开发有限公司
规划审批单位:楚雄市自然资源局
公示类别:批前公示
公示时间:2022年3月9日至2022年3月15日
公示地点:楚雄市自然资源局办公区一楼大厅、施工现场、售楼部
公示网址:http://www.cxs.gov.cn/zfxxgk/bmgk.htm
公示组织单位:楚雄市自然资源局
意见反馈联系电话:3159991 3139022 传真:3159990
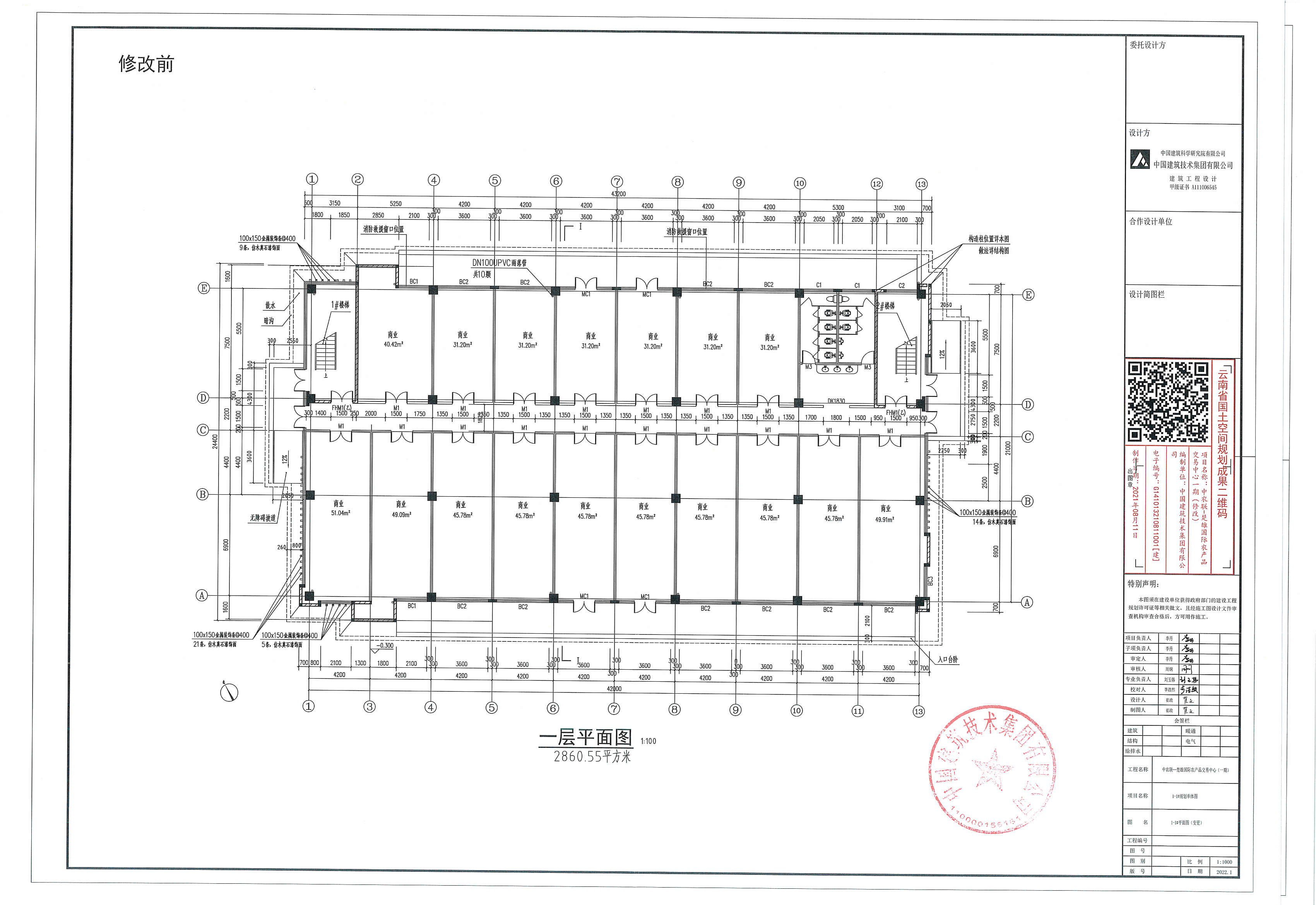
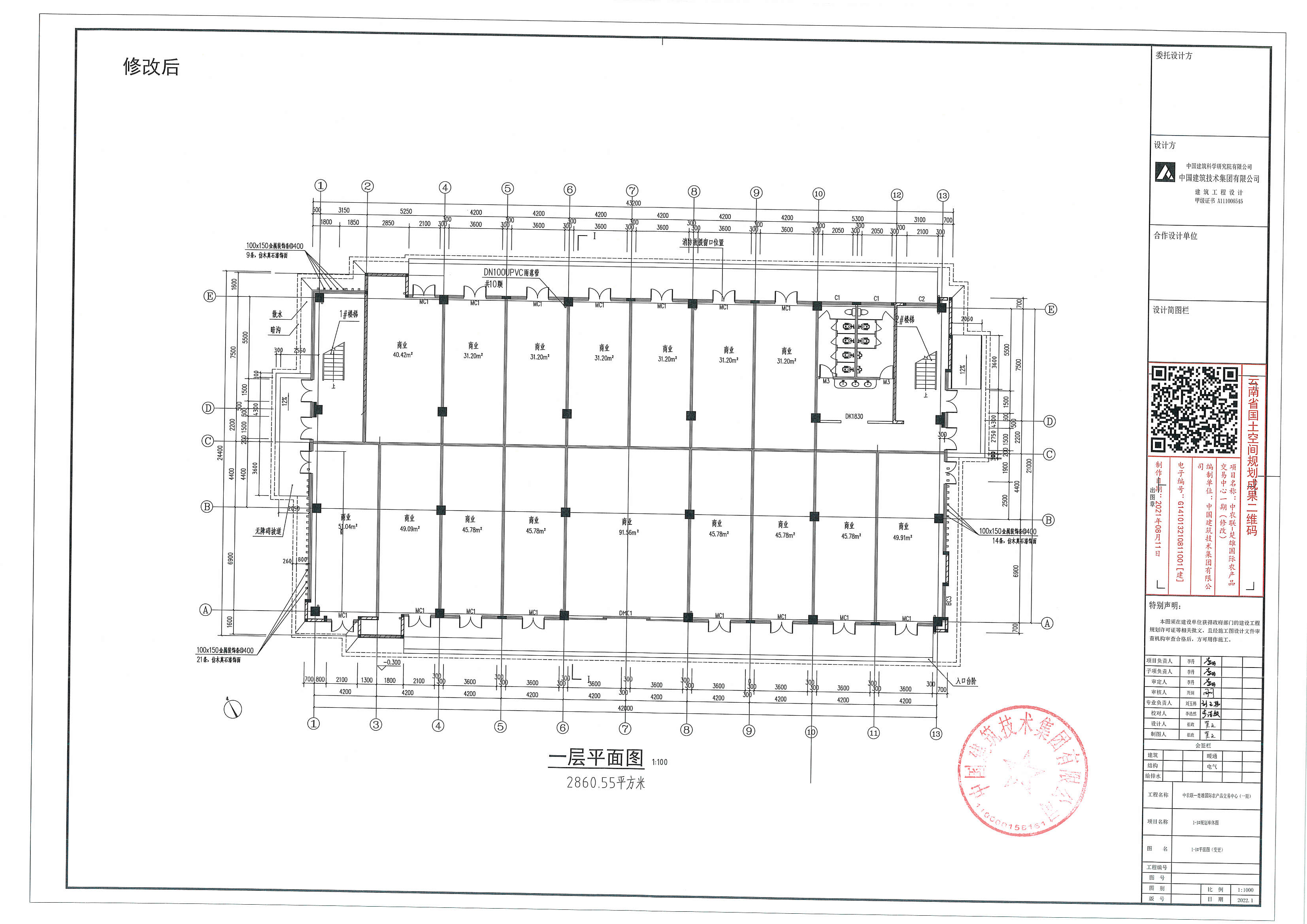
项目简介:中农联—楚雄国际农产品交易中心一期项目用地位于楚雄市紫溪镇前进社区,地块南、西临G320国道,北临G56杭瑞高速,东临拟出让用地,规划用地面积170亩。该项目修建性详细规划于2018年10月审定,2021年6月进行规划修改。现项目单位提出在保持规划布局、交通组织、竖向设计、工程管线、经济技术指标等不变的前提下,对1-1栋商业建筑一层进行变更:1-1栋一层原设计有内走道,两侧商铺向内走道开门,现取消内走道,商铺沿街开门。
楚雄市自然资源局
2022年3月9日







