楚雄市自然资源局关于建设项目竣工规划
核实验收公示
楚市自资验收公示〔2021〕018号
项目名称:楚雄市鹿城镇东兴社区黄泥坝居民小组综合农贸市场(部分建筑)
申报类别:建设工程竣工规划核实验收
申请人: 楚雄市鹿城镇东兴社区黄泥坝居民小组
核实单位:楚雄市自然资源局
公示时间:2021年11月19日—2021年11月25日
公示地点:楚雄市自然资源局办公区一楼大厅;竣工现场。
公示网址:http://www.cxs.gov.cn/zfxxgk/bmgk.htm
组织公示单位:楚雄市自然资源局
项目地点:楚雄市鹿城镇黄泥坝村
意见反馈联系电话:3139022 3159991 传真:3159990
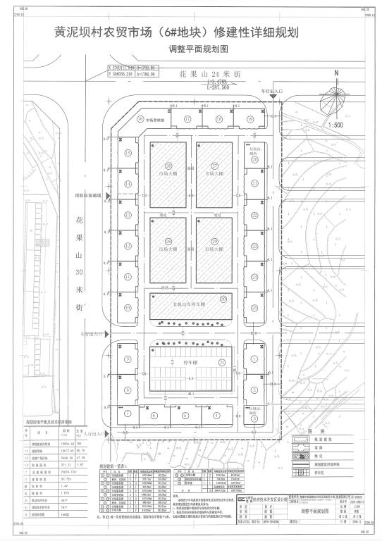
项目简介:楚雄市鹿城镇东兴社区黄泥坝居民小组建设的综合农贸市场项目用地位于花园路东侧黄泥坝村。黄泥坝农贸市场(6#地块)修建性详细规划于2010年1月13日审定,项目规划建设净用地面积19854.6㎡,规划总建筑面积29674.72㎡,建筑密度50.75%,容积率1.49,绿地率1.87%,项目规划有1-2、4-6、7、8-15、17-19、21-25共22幢市场服务楼,16市场管理部、3、20共2栋厕所及垃圾站,26-27、28-29共4幢市场大棚,30非机动车停车棚,31停车棚,合计31幢建筑。2011年4月1日楚雄市鹿城镇东兴社区黄泥坝居民小组根据审定的项目修建性详细规划向楚雄市住房和城乡建设局申请办理了编号为建字第532301201100168号建设工程规划许可证,建筑面积24414㎡,许可内容为:管理用房1栋四层、厕所及垃圾站2栋三层、底商住宅6栋五层、市场服务楼1栋局部四层。2021年11月楚雄市鹿城镇东兴社区黄泥坝居民小组向我局申请对已竣工的综合农贸市场(部分建筑,共21栋)进行规划核实验收,经测绘单位实测和现场比对,1-2、4-6、8-15、17-19、21-25共21栋市场服务楼实测总建筑面积21453.22㎡,其建设规模符合《建设工程规划许可证》许可内容和审定规划,其建筑于2012年4月20日经消防验收合格,现拟对楚雄市鹿城镇东兴社区黄泥坝居民小组综合农贸市场21栋建筑按照单体建筑工程进行规划核实验收。根据《楚雄州建设工程竣工规划验收管理办法》的有关规定特进行公示,如对楚雄市鹿城镇东兴社区黄泥坝居民小组综合农贸市场21栋单体建筑规划核实验收有异议的请在公示期限内与我局联系。
附件内容:
1.楚雄市鹿城镇东兴社区黄泥坝居民小组综合农贸市场(部分建筑)验收位置示意图;
2.楚雄市鹿城镇东兴社区黄泥坝居民小组综合农贸市场修建性详细规划图;
3.楚雄市鹿城镇东兴社区黄泥坝居民小组综合农贸市场(部分建筑)规划验收实测对比图。
楚雄市自然资源局
2021年11月18日


