楚雄市自然资源局关于建设项目竣工规划
核实验收公示
楚市自资验收公示〔2021〕017号
项目名称:楚雄茶花谷国际社区·香溪堤二期(B区)
申报类别:建设工程竣工规划核实验收
申请人: 楚雄百爵茶花谷房地产开发有限公司
核实单位:楚雄市自然资源局
公示时间:2021年11月1日—2021年11月7日
公示地点:楚雄市自然资源局办公区一楼大厅;竣工现场。
公示网址:http://www.cxs.gov.cn/zfxxgk/bmgk.htm
组织公示单位:楚雄市自然资源局
项目地点:楚雄市茶花谷片区北部
意见反馈联系电话:3139022 3159991 传真:3159990
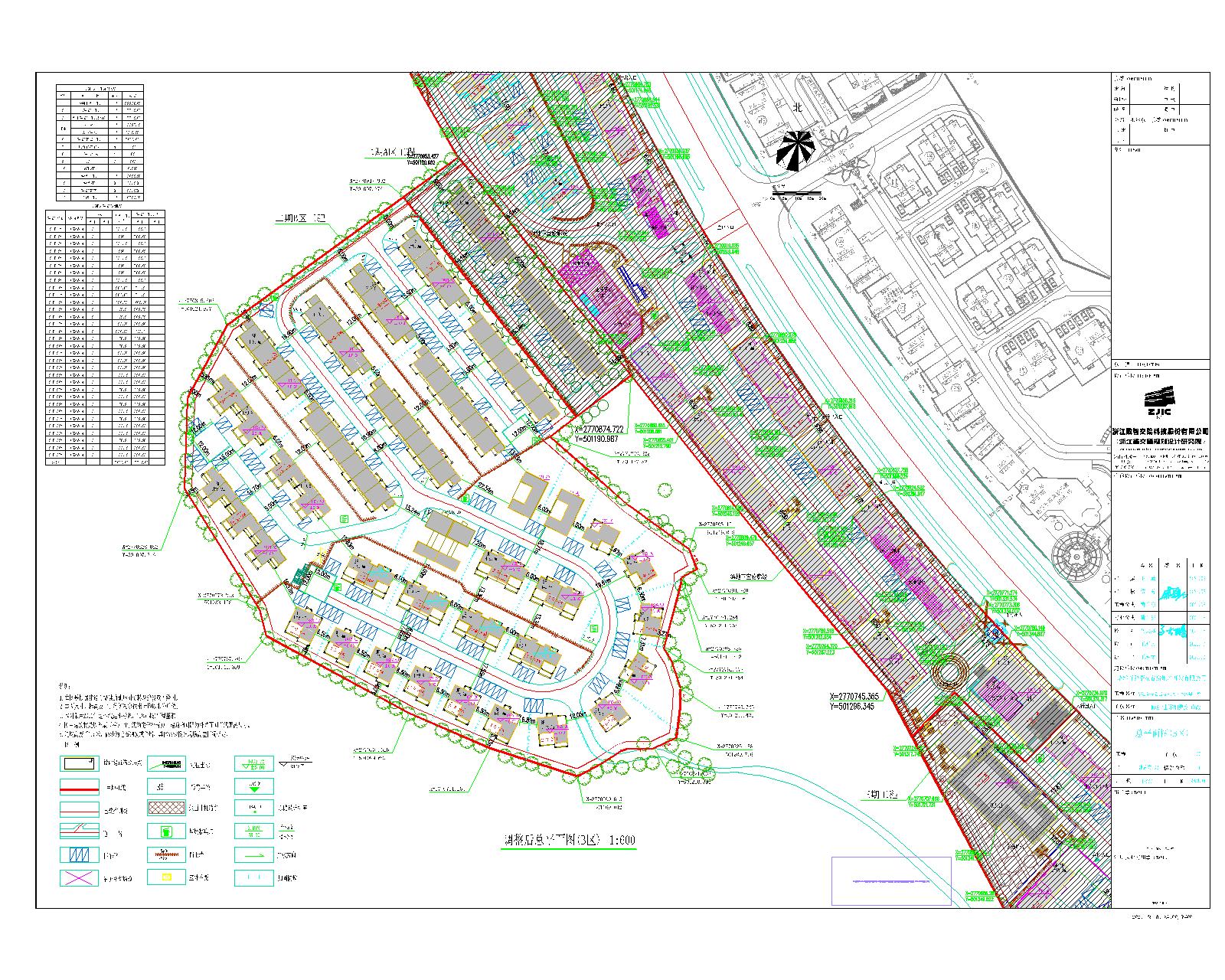
项目简介:楚雄茶花谷国际社区·香溪堤建设项目位于楚雄市鹿城镇茶花大道中段,地块东临茶花大道,北临施家安置小区,南临王家安置小区,西临现状山体,规划用地面积90791.77㎡,规划总建筑面积107099.22㎡,其中计容建筑面积99895.46㎡,建筑密度27.79%,容积率1.1,绿地率35.02%,机动车停车位716个。该项目分三期实施建设,其中一期已经于2020年8月完成规划核实验收。二期分为A区、B区,其中A区并入三期建设,三期项目正在建设中。此次对二期(B区)进行规划核实验收。楚雄茶花谷国际社区·香溪堤二期(B区)建设项目修建性详细规划(修改)于2018年11月30日审定实施,规划用地面积29938.05㎡,规划建筑面积17712.64㎡,计容建筑面积17712.64㎡,建筑密度23.53%,容积率0.592,绿地率43.51%,机动车停车位154个(均为地上停车位),所有指标均包含于总指标中。2019年2月28日楚雄百爵茶花谷房地产开发有限公司根据审定的项目修建性详细规划向楚雄市行政审批局申请办理了楚雄茶花谷国际社区·香溪堤二期(B区)建设项目《建设工程规划许可证》,编号为建字第楚雄市201900022号,建筑面积17650.59㎡,许可内容为:低层住宅29栋地上三层、低层住宅3栋地上两层。楚雄茶花谷国际社区·香溪堤二期(B区)建设项目于2019年12月12日提出规划变更,变更后的建筑面积为17712.64㎡。2021年10月楚雄百爵茶花谷房地产开发有限公司向我局申请对已竣工的楚雄茶花谷国际社区.香溪堤二期(B区)建设项目进行规划核实验收,经测绘单位实测和现场比对,该项目实测用地面积29938.05㎡,总建筑面积17739.05㎡,其中计容建筑面积17739.05㎡,建筑密度23.99%,容积率0.593,绿地率49.44%,机动车停车位154个(均为地上停车位)。根据《楚雄彝族自治州建设工程竣工规划验收管理办法》的有关规定特进行公示,如楚雄茶花谷国际社区香溪堤二期(B区)建设项目规划核实验收有异议的请在公示期限内与我局联系。
附件内容:
1. 楚雄茶花谷国际社区香溪堤二期(B区)建设项目验收位置示意图;
2. 楚雄茶花谷国际社区香溪堤二期(B区)建设项目修建性详细规划图;
3.楚雄茶花谷国际社区香溪堤二期(B区)建设项目规划验收实测对比图。
楚雄市自然资源局
2021年11月1日


