楚雄市自然资源局对建设项目竣工规划
核实验收公示
楚市自资验收公示〔2021〕015号
项目名称:楚雄“民族家园”
申报类别:建设工程竣工规划核实验收
申请人: 楚雄富邦房地产开发有限公司
核实单位:楚雄市自然资源局
公示时间:2021年10月19日—2021年10月25日
公示地点:楚雄市自然资源局办公区一楼大厅;竣工现场。
公示网址:http://www.cxs.gov.cn/zfxxgk/bmgk.htm
组织公示单位:楚雄市自然资源局
项目地点:楚雄市胜景路东侧
意见反馈联系电话:3139022 3159991 传真:3159990
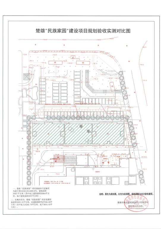
项目简介:楚雄“民族家园”建设项目用地位于楚雄市胜景路东侧,南临“回民文化中心”,东临云荷路,北临民族广场。楚雄富邦房地产开发有限公司报审的楚雄“民族家园”修建性详细规划于2013年10月审定实施,规划用地面积3993.33平方米,规划总建筑面积26964.12平方米,其中地上建筑面积23907.12平方米,地下建筑面积3057平方米,建筑密度39.968%,容积率5.9876,绿地率24.7%,机动车停车位共231个,其中地上停车位41个,地下停车位70个,清真寺提供120个。2014年1月24日楚雄富邦房地产开发有限公司取得楚雄“民族家园”建设项目《建设工程规划许可证》,编号为建字第532301201400018号,项目总建筑面积30021平方米,其中地上建筑面积26964平方米,地下建筑面积3057平方米,许可内容为:高层住宅2栋地上二十二层局部一层(其中一层为地上车库、单车房及物管办公用房)、地下车库一层。2021年8月楚雄富邦房地产开发有限公司向我局申请对楚雄“民族家园”建设内容进行规划核实验收,经测绘单位实测楚雄“民族家园”项目实测用地面积3993.33平方米,总建筑面积为27236.69平方米(其中地上24202.76平方米,地下3033.93平方米),计容建筑面积24202.76平方米,不计容建筑面积3033.93平方米,建筑密度40.006%,容积率6.0608,绿地率13.03%,机动车停车位共107个(其中地上停车位43个,地下停车位64个),并于B幢东侧增设燃气调压柜。经现场踏勘与规划比对核实,楚雄“民族家园”项目实测总建筑面积超出规划272.57平方米,计容建筑面积超出规划295.64平方米,容积率超出规划0.0741,超出地块规划设计条件容积率0.0608,建筑密度超出规划0.038%,绿地率低于规划11.67%(绿地面积不足468.86平方米);机动车停车位总个数少于规划124辆(由于清真寺实际实施机动车停车位不足,因此无法提供120辆);项目存在A-203、A-204、B-201、B-202、B-203、B-204共6户侵占公共露台违章建设行为。目前,项目部分经济技术指标和配套设施不符合规划许可及审定规划内容等情况正在向该小区业主征求意见。根据《中共楚雄市委办公室 楚雄市人民政府办公室印发<关于推进房地产领域矛盾化解工作实施方案>的通知》《楚雄市人民政府办公室关于进一步加快推进房地产领域矛盾化解工作的通知》等文件要求及《楚雄州建设工程竣工规划验收管理办法》规定特进行公示,如对楚雄“民族家园”建设内容规划核实验收有异议的请在公示期限内与我局联系。
附件内容:1.楚雄“民族家园”验收位置示意图;
2.楚雄“民族家园”修建性详细规划图;
3.楚雄“民族家园”规划验收实测对比图。
楚雄市自然资源局
2021年10月19日


