审批公示
楚市自然资源公示〔2021〕019号
项目名称:楚雄玖龙国际住宅小区一期13栋建筑功能调整
申报类别:规划审批
申报单位:云南楚雄龙升工贸有限公司
规划审批单位:楚雄市自然资源局
公示类别:批前公示
公示时间:2021年5月20日至2021年5月27日
公示地点:楚雄市自然资源局办公区一楼大厅、售楼部、物业公示栏
公示网址:http://www.cxs.gov.cn/zfxxgk/bmgk.htm
公示组织单位:楚雄市自然资源局
意见反馈联系电话:3159991 3139022 传真:3159990
项目简介:楚雄玖龙国际住宅小区项目用地位于楚雄市东南新城东北部,地块东临瑞东路,南临云南楚雄农产品中心批发市场项目用地,西临广平路,北临文鼎路,规划用地面积294.20亩。该项目修建性详细规划于2011年7月8日审批实施建设,之后于2013年7月9日、2015年5月12日、2016年4月14日、2019年8月6日分别进行修改。由于原修建性详细规划中只将一期13栋建筑标注为“社区、物管用房,社区文化用房”,未明确具体的建筑功能划分,现云南楚雄龙升工贸有限公司提出,为方便后期使用,在保持楚雄玖龙国际住宅小区项目整体布局不变的前提下,对一期13栋建筑功能布局进行细化和明确。
审批概况:
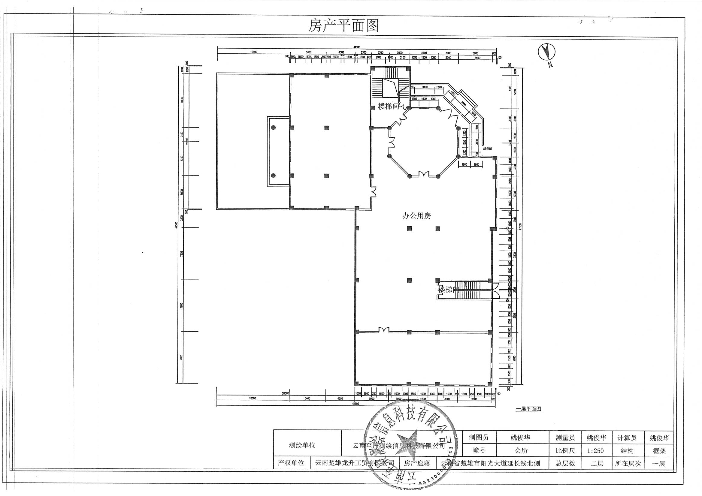
根据一期13栋房产实测建筑面积计算报告,13栋共四层,地下二层,地上二层,总建筑面积为4643.05㎡。其中,负二层建筑面积1345.81㎡,负一层建筑面积1345.81㎡,一层建筑面积1074.66㎡,二层建筑面积750.17㎡,屋顶层建筑面积126.60㎡。建筑功能具体划分如下:
负二层:物业设备用房460.56㎡+388.51㎡,物业监控室269.58㎡,物业仓储用房227.16㎡。
负一层:社区文化用房460.56㎡,社区用房439.59㎡,物业办公用房319.16㎡,社区附属用房126.50㎡。
一层:办公用房1074.66㎡。
二层:办公用房750.17㎡。
以上公共配套服务用房合计2691.62平米(物管用房合计1664.97㎡,社区文化用房合计460.56㎡,社区用房合计566.09㎡),办公用房合计1824.83㎡。
2021年5月20日




