楚雄市自然资源局对建设项目竣工规划
核实验收公示
楚市自资验收公示〔2021〕007号
项目名称:永兴彝海大成二区(A区)
申报类别:建设工程竣工规划核实验收
申请人: 楚雄永兴彝海房地产开发有限责任公司
核实单位:楚雄市自然资源局
公示时间:2021年4月23日—2021年4月29日
公示地点:楚雄市自然资源局办公区一楼大厅;竣工现场。
公示网址:http://www.cxs.gov.cn/zfxxgk/bmgk.htm
组织公示单位:楚雄市自然资源局
项目地点:楚雄市鹿城镇彝海公园南侧
意见反馈联系电话:3139022 3159991 传真:3159990
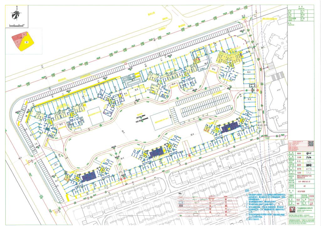
项目简介:楚雄永兴彝海房地产开发有限责任公司报审的永兴彝海大成二区(A区)修建性详细规划修改方案于2018年9月审定实施,项目用地位于楚雄市鹿城镇彝海公园南侧。永兴彝海大成二区(A区)规划用地面积45964.64平方米,规划建筑面积223304.06平方米,其中计容建筑面积171476.53平方米(含公共配套建筑面积1471.41平方米),不计容建筑面积51827.53平方米,建筑密度28.6%,容积率3.73,绿地率31.65%,机动车停车位共1492个,非机动车停车位990个。2018年9月该公司对该项目进行报建,并按程序办理了编号为建字第楚雄市201800172号的《建设工程规划许可证》,建设规模为223304.06平方米(其中地上174870.65平方米,地下48433.41平方米),其许可内容为:高层底商住宅1栋框剪结构地上31层裙楼1层(其1层裙楼为商业,同时1层设有健身活动用房和架空层)、高层底商住宅1栋框剪结构地上31层裙楼1层(其1层裙楼为商业,同时1层设有架空层和一栋1层架空门厅)、高层底商住宅1栋框剪结构地上31层裙楼1层(其1层裙楼为商业,同时1层设有公厕、社区用房和架空层)、高层底商住宅1栋框剪结构地上31层裙楼1层局部2层(其1层、2层裙楼为商业,同时1层设有架空层,1、2层设有物管用房)、高层底商住宅2栋框剪结构地上28层局部31层裙楼1层(其1层裙楼为商业,同时1层设有公厕和架空层)、高层底商住宅1栋框剪结构地上31层裙楼1层(其1层裙楼为商业,同时1层设有消防控制室和架空层)、地下室一栋框架结构一层局部二层(地下一层局部设夹层主要用途为非机动车停车库)。2021年4月楚雄永兴彝海房地产开发有限责任公司向我局申请对已竣工的永兴彝海大成二区(A区)建设内容进行规划核实验收,经测绘单位实测和现场比对,永兴彝海大成二区(A区)A区项目实测用地面积45964.64平方米,总建筑面积为223666.92平方米(其中地上175218.87平方米,地下48448.05平方米),计容建筑面积171561.56平方米(含配套用房面积1520.99平方米),不计容建筑面积52105.36平方米,建筑密度29.91%,容积率3.73,绿地率30.23%,机动车停车位共1492个,非机动车停车位990个,A区项目总建筑面积超出规划许可建筑面积362.86平方米(A-6#及A-8#增设非机动车车库出屋面通道永久性结构顶板,A-1#及A-3#增设建筑排烟井,上述行为未按照规划许可内容实施建设)。根据《楚雄州建设工程竣工规划验收管理办法》的规定特进行公示,如对永兴彝海大成二区(A区)建设内容规划核实验收有异议的请在公示期限内与我局联系。
附件内容:
1.永兴彝海大成二区(A区)验收位置示意图
2.永兴彝海大成二区(A区)修建性详细规划图
3.永兴彝海大成二区(A区)规划验收实测对比图
楚雄市自然资源局
2021年4月23日


