楚雄市自然资源局建设项目行政
审批公示
楚市自然资源公示〔2021〕014号
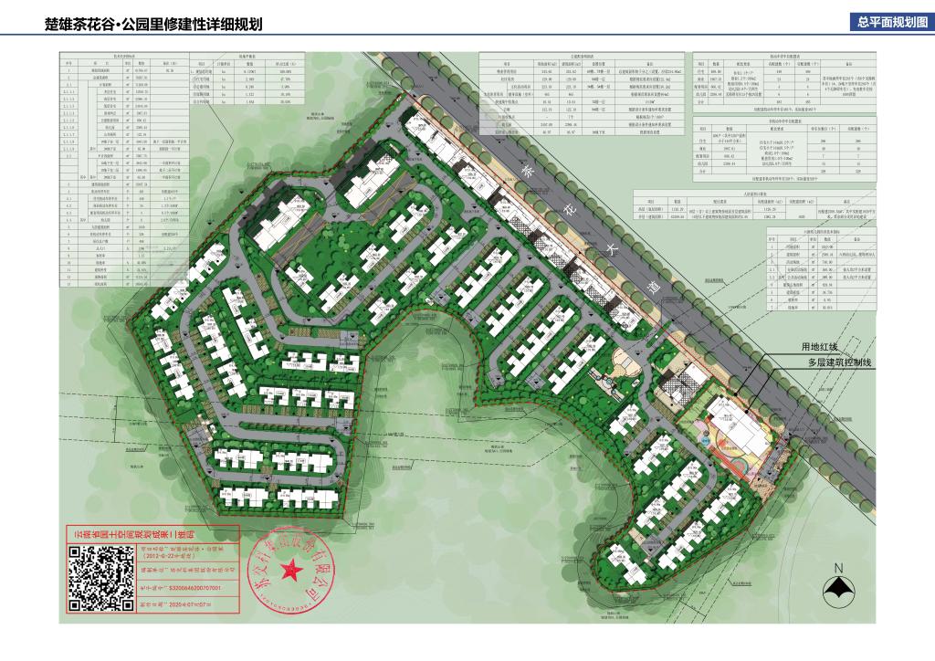
项目名称:楚雄茶花谷·公园里(2012-G-22号地块)修建性详细规划
申报类别:规划审批
申报单位:楚雄百爵茶花谷房地产开发有限公司
规划审批单位:楚雄市自然资源局
公示类别:批前公示
公示时间:2021年4月21日至2021年4月27日
公示地点:楚雄市自然资源局办公区一楼大厅、施工现场
公示网址:http://www.cxs.gov.cn/zfxxgk/bmgk.htm
公示组织单位:楚雄市自然资源局
意见反馈联系电话:3159991 3139022 传真:3159990
项目简介:楚雄茶花谷·公园里(2012-G-22号地块)项目用地位于楚雄市西部茶花谷片区,地块东临茶花大道,南、西、北临现状山体,规划用地面积92.56亩。通过规划拟建高、多、低层住宅建筑及其配套设施。
审批概况: 规划用地面积:61706.67㎡
总建筑面积:78267.81㎡(其中计容建筑面积71260.06㎡)
建筑密度:24.81%
容积率:1.15
绿地率:30.05%
停车位:483个(其中地上停车位243个;地下停车位240个)
楚雄市自然资源局
2021年4月21日




