审批公示
  
楚市自然资源公示〔2021〕013号
   
  
项目名称:中梁国宾府建设项目修建性详细规划变更
  
申报类别:规划审批
  
申报单位:楚雄永梁和置业有限公司
  
规划审批单位:楚雄市自然资源局
  
公示类别:批前公示
  
公示时间:2021年3月23日至2021年3月29日
  
公示地点:楚雄市自然资源局办公区一楼大厅、售楼部
  
公示网址:http://www.cxs.gov.cn/zfxxgk/bmgk.htm
  
公示组织单位:楚雄市自然资源局
  
意见反馈联系电话:3159991    3139022   传真:3159990
  
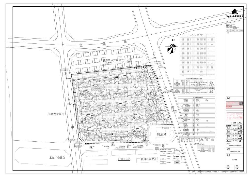
项目简介:中梁国宾府建设项目用地位于楚雄市东南新城北部,地块东临广平路,南临彝海社区松树地安置小区项目用地,西临新安路,北临彝海集中安置点项目用地,规划用地面积112.96亩。中梁国宾府建设项目修建性详细规划于2019年6月13日审定实施,现楚雄永梁和置业有限公司提出在该项目各项经济技术指标满足相关规范要求、技术标准的前提下,对该项目进行局部调整。
  
主要修改内容为:
  
1. 将项目东部已建商业S5#调改为幼儿园;
  
2. 为保证北侧彝海安置小区消防通道使用需要,项目建设向南侧后退7米,绿地率、停车位相应减少;
  
3. S4#商业向南侧移动3.9米。
  
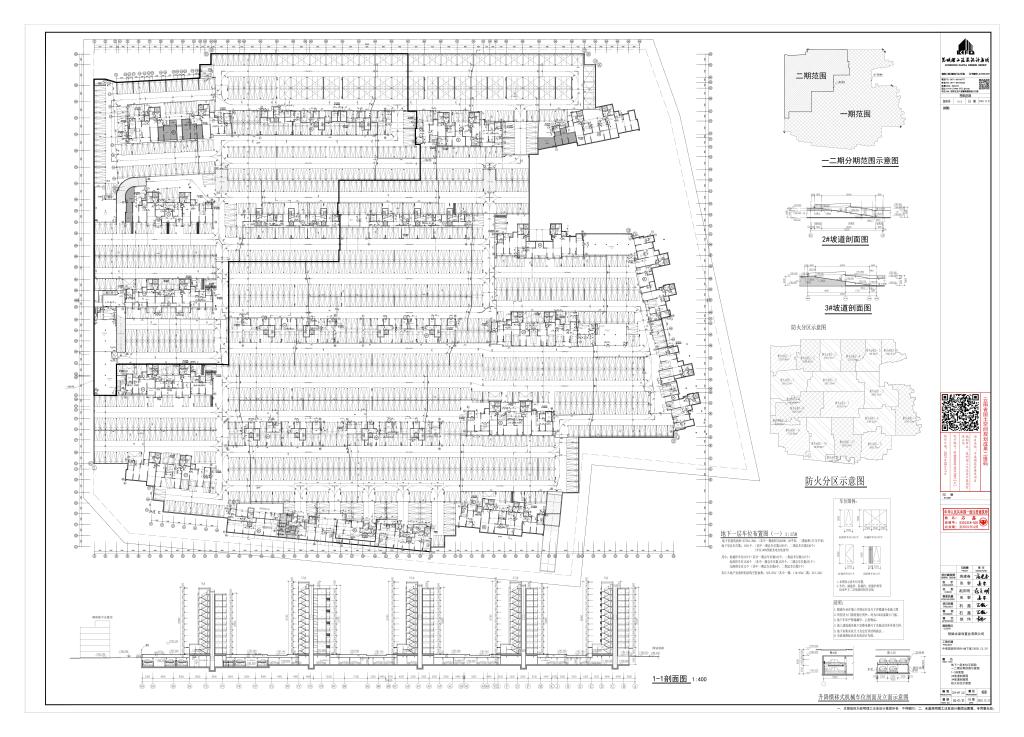
4. 按建设开发实际进度,该项目分期实施建设,一期为:1#、2#、3#、4#、5#、6#、7#、10#、11#、14#、15#、16#、18#、19#、20#、21#、22#,共计17栋;二期为:8#、9#、12#、13#、17#,共计5栋。
  
审批概况:  
  
中梁国宾府项目修建性详细规划修改前后主要经济技术指标对比表
  
| 名称
        | 修改前指标
        | 修改后指标
        | 变化值
        | ||
| 规划用地面积(㎡)
        | 75309.00
        | 75309.00
        | 0
        | ||
| 总建筑面积(㎡)
        | 321137.55
        | 321165.37
        | ﹢27.82
        | ||
| 计容建筑面积(㎡)
        | 263463.16
        | 263490.98
        | ﹢27.82
        | ||
| 建筑密度(%)
        | 22.04
        | 22.04
        | 0
        | ||
| 容积率
        | 3.50
        | 3.50
        | 0
        | ||
| 绿地率(%)
        | 35.40
        | 33.00
        | 0
        | ||
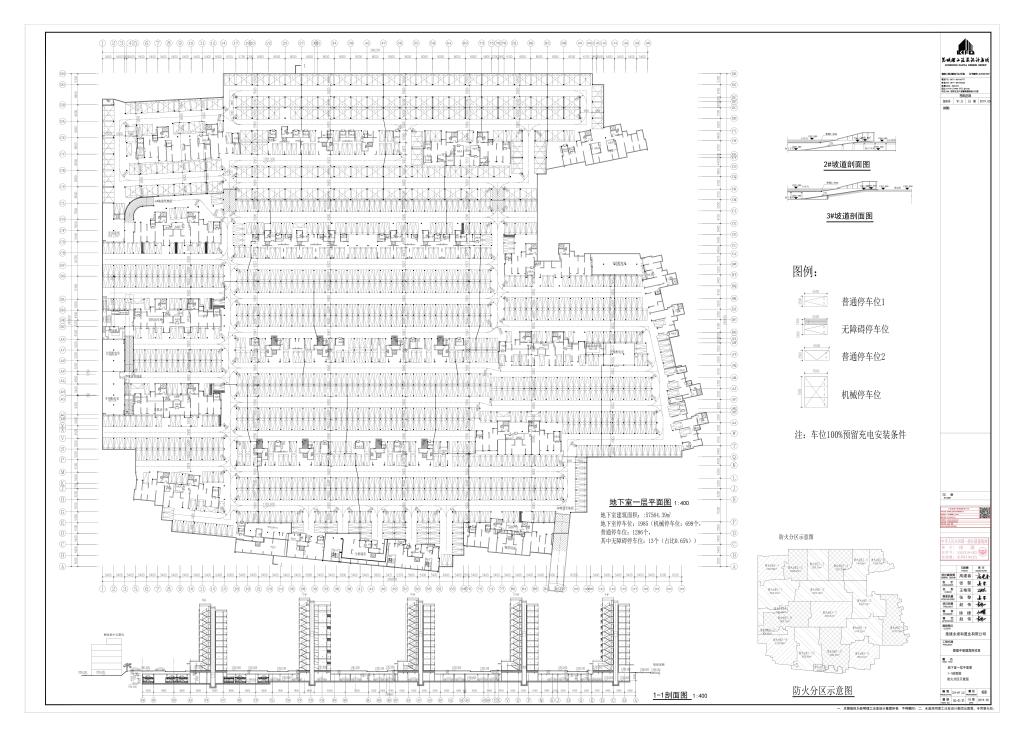
| 停车位(个)
        | 2335
        | 2127
        | ﹣208
        | ||
| 其中
        | 地上(个)
        | 350
        | 306
        | ﹣44
        | |
| 地下(个)
        | 1985
        | 1821
        | ﹣164
        | ||
| 其中
        | 标准停车位(个)
        | 1286
        | 1543
        | ﹢257
        | |
| 机械停车位(个)
        | 699
        | 278
        | ﹣421
        | ||
中梁国宾府项目修建性详细规划分期主要经济技术指标表
  
| 名称
        | 总指标
        | 一期指标
        | 二期指标
        | ||
| 规划用地面积(㎡)
        | 75309.00
        | 55549.00
        | 19760.00
        | ||
| 总建筑面积(㎡)
        | 321165.37
        | 241763.63
        | 79401.74
        | ||
| 计容建筑面积(㎡)
        | 263490.98
        | 201262.24
        | 62228.74
        | ||
| 停车位(个)
        | 2127
        | 1629
        | 498
        | ||
| 其中
        | 地上(个)
        | 306
        | 182
        | 124
        | |
| 地下(个)
        | 1821
        | 1447
        | 374
        | ||
| 其中
        | 标准停车位(个)
        | 1543
        | 1285
        | 258
        | |
| 机械停车位(个)
        | 278
        | 162
        | 116
        | ||
  
  
楚雄市自然资源局
2021年3月23日
  




