审批公示
  
楚市自然资源公示〔2021〕012号
   
  
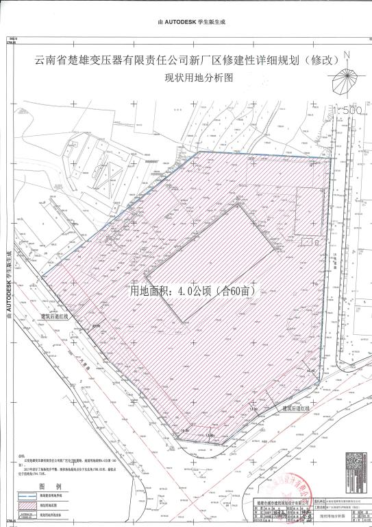
项目名称:云南省楚雄变压器有限责任公司新厂区修建性详细规划(修改)
  
申报类别:规划审批
  
申报单位:云南省楚雄变压器有限责任公司
  
规划审批单位:楚雄市自然资源局
  
公示类别:批前公示
  
公示时间:2021年3月23日至2021年3月29日
  
公示地点:楚雄市自然资源局办公区一楼大厅、施工现场
  
公示网址:http://www.cxs.gov.cn/zfxxgk/bmgk.htm
  
公示组织单位:楚雄市自然资源局
  
意见反馈联系电话:3159991 3139022 传真:3159990
项目简介:云南省楚雄变压器有限责任公司新厂区项目用地位于楚雄市东南新城东南部,南临龙潭路,西临兴楚路,北临中石化富新加油站和万景彝海学府项目用地,规划用地面积60亩。《云南省楚雄变压器有限责任公司新厂区修建性详细规划》于2012年9月29日审定实施,后于2013年7月26日进行第一次修改,现云南省楚雄变压器有限责任公司提出在该项目各项经济技术指标满足相关规范要求、技术标准的前提下,再次提出对该项目修建性详细规划进行修改。
审批概况:  
  
| 名称
        | 修改前指标
        | 修改后指标
        | 变化值
        | 
| 规划用地面积(㎡)
        | 40000
        | 40000
        | 0
        | 
| 总建筑面积(㎡)
        | 22701.09
        | 24335.08
        | +1633.99
        | 
| 计容建筑面积(㎡)
        | 39051.18
        | 39528.55
        | +477.37
        | 
| 建筑密度(%)
        | 42.98
        | 44.85
        | +1.87
        | 
| 容积率
        | 1
        | 0.99
        | -0.01
        | 
| 绿地率(%)
        | 15
        | 7.64
        | -7.36
        | 
| 停车位(个)
        | 36
        | 52
        | +16
        | 
  
  
  
  
  
楚雄市自然资源局
2021年3月23日
  
 
 
 
 
