楚雄市自然资源局对建设项目竣工规划核实
验收公示
项目名称:楚雄实验中学新校区建设项目(一期)
申报类别:建设工程竣工规划核实验收
申请人: 楚雄实验中学
核实单位:楚雄市自然资源局
公示时间:2020年9月30日—2020年10月6日
公示地点:楚雄市自然资源局办公区一楼大厅;竣工现场。
公示网址:http://www.cxs.gov.cn/zwzt/rdzt/bzhgfhsdgz/index.html
组织公示单位:楚雄市自然资源局
项目地点:楚雄市东南新城东升路东侧
意见反馈联系电话:3139022 3159991 传真:3159990
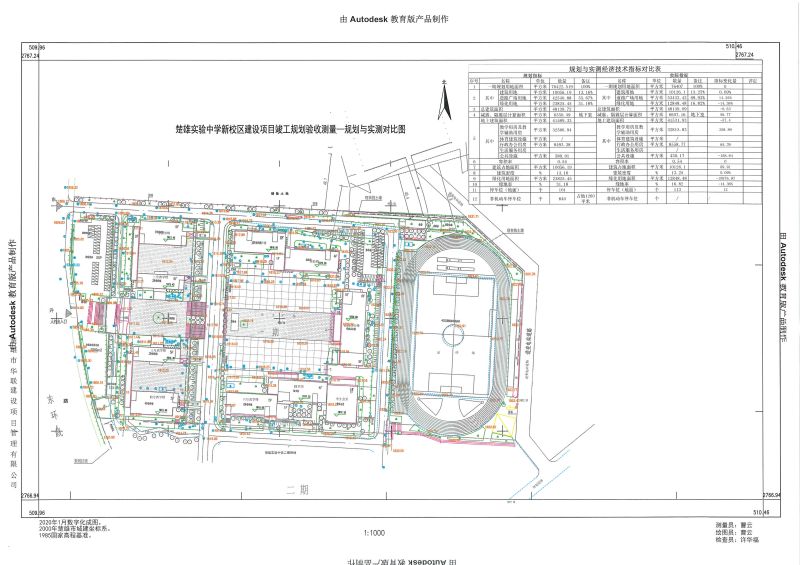
项目简介:楚雄实验中学报审的楚雄实验中学新校区建设项目(一期)修建性详细规划于2017年9月审定实施,其地块位于楚雄市东南新城东升路东侧,规划用地面积76422.519 ㎡,规划总建筑面积48139.72㎡,其中地上建筑面积41589.33㎡,地下建筑面积6550.39㎡,建筑密度13.16%,容积率0.54,绿地率31.18%。2017年9月楚雄实验中学对该项目进行报建,并按程序办理了编号为建字第楚雄市201700023号的《建设工程规划许可证》,建设规模48054.26㎡(其中地下隔震层6550.37㎡),许可内容为:教学楼六栋框架结构地上5层地下1层、连廊一架框架结构地上2层地下1层、行政办公楼一栋框架结构地上6层地下1层、实验楼一栋框架结构地上4层地下1层、学生会堂一栋框架结构地上1层地下1层、图书馆一栋框架结构地上4层地下1层、学生公厕一栋钢架结构地上1层、大门(门卫及安检室)一栋框架结构地上2层。2020年9月楚雄实验中学向我局申请对已竣工建设完成的楚雄实验中学新校区建设项目(一期)进行规划核实验收。经测绘单位实测和现场比对,项目实测总建筑面积为48139.09㎡,容积率0.54,建筑密度13.25%,绿地率16.82%;因建设项目400米跑道标准运动场未按照规划植草实际为塑胶场地,未计入绿地率,实际绿化低于修规确定面积10976.97㎡;公共设施低于修规确定面积158.84㎡;建设项目大门西南侧非机动车停车场未按规划实施并调整为机动车停车区,项目垃圾中转站按建设方承诺纳入实验中学二期统一实施建设。其余建设情况符合《建设工程规划许可证》许可内容,根据《楚雄州建设工程竣工规划验收管理办法》的有关规定特进行公示,如对该项目建设内容规划核实验收有异议的请在公示期限内与我局联系。
附件:1.建设工程规划许可证
2.楚雄实验中学新校区建设项目(一期)修建性详细规划图
3.楚雄实验中学新校区建设项目(一期)规划验收实测对比图
4.楚雄实验中学新校区建设项目(一期)验收位置示意图
楚雄市自然资源局
2020年9月30日



